こばり坂クリニック

  • 整形外科
  • リハビリテーション科
  • 内科

こばり坂クリニック

医師二人のコンセプトを融合し、地域医療とスポーツ整形を両立

こばり坂クリニックは、高齢者の運動機能維持という地域医療とスポーツ整形の2つを併せ持つ整形外科。地域医療に尽力する理事長は、もともと近隣で特別
養護老人ホームを経営。「年齢を問わず、誰もが通いやすいクリニックをつくりたい」という想いが募り、新たなクリニックの誕生につながりました。

S_241001_004.jpg

大きな窓に水平ラインを強調したすっきりとした外観、外構も歩車分離動線で患者さまの安全性に配慮しています。

S_241001_003.jpg

「街に貢献したい」と道路沿いの大きな窓には映像を投影できるシステムを導入。クリニックや地域の情報を発信しています。

S_241001_015.jpg

コンセプトは「海とジャズ」。へき地医療に注力する理事長は素潜りをするほどの海好きで、スポーツ整形に従事する院長は音楽好きでジャズに精通していたから。待合空間は、波止場に停泊する船をイメージするなど、あちこちに「海とジャズ」をちりばめ、自然に愛着の湧くクリニックが完成しました。

S_241001_016.jpg

高齢者から学生さんまで幅広い年齢層の患者さまが訪れます。そこで待合室も、どんな世代の方も居心地がよい “カフェスタイル”を採用。ソファや一人掛けのカウンター席、テーブル席などを設けました。五感で安らぐ事もテーマとしてアロマ香る空間となっています。

S_241001_024tor.jpg

2階は「ジャズ」がテーマ。大人な雰囲気のJAZZ-BARを意識して内装仕上げ材を選択。吹き抜けにかかるデッキは舟にかかる桟橋をイメージして設計。夜空に浮かぶ星や花火をイメージした照明が1階の診療ゾーンと2階のリハビリゾーンをつなぎます。

S_241001_025.jpg

上下階を一体化した開放的な空間づくりもポイント。仕切りを減らし、開放的にすることで、スタッフ同士がお互いの動きや気配をとらえやすく、コミュニケーションも取りやすくなっています。

S_241001_031.jpg

スタッフルームや休憩スペースは、自然に人が集まる開放的なデザインに。オープンスペースの一角のように、完全には閉じきらない空間づくりが特徴です。スタッフ同士が会話をしやすい環境を整えることで、患者さまの情報共有がスムーズになり診療にも役立ちます。

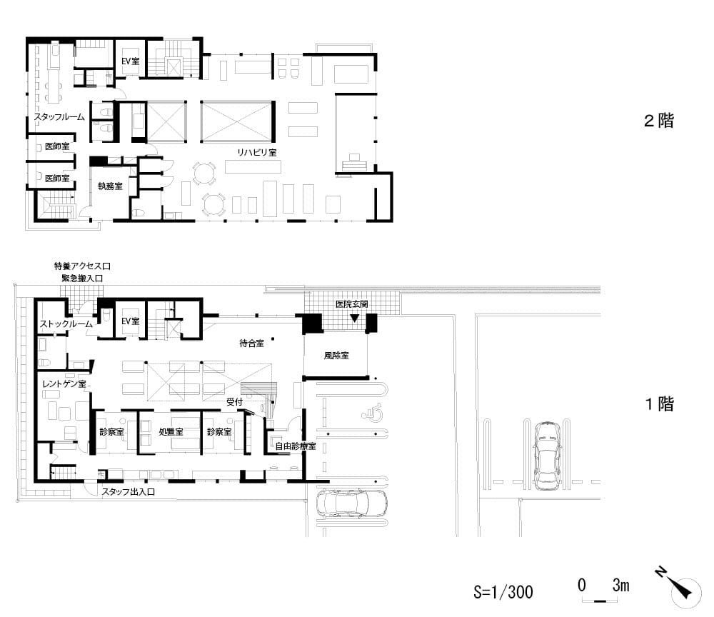
施設情報

こばり坂クリニック
用途 医院専用
敷地面積 925.16㎡
1F床面積 234.91㎡
2F床面積 227.32㎡
担当支店 新潟支店

その他の建築実例