青木医院
- 整形外科
- リハビリテーション科
- 皮膚科
- 医院専用
整形外科医院に、
介護施設を併設した地域の総合リハビリ拠点
ドクターは、地域で代々医院を営まれてきたご一家の4代目。老朽化した医院の建て替えを機に、整形外科での外来リハビリを充実させ、さらに居宅介護サービスとして通所リハビリ、訪問リハビリを開設されました。従来の患者さんだけでなく新たな利用者も増え、「一生涯通じてしっかりリハビリが続けられるように」というドクターの想いが地域貢献につながっています。
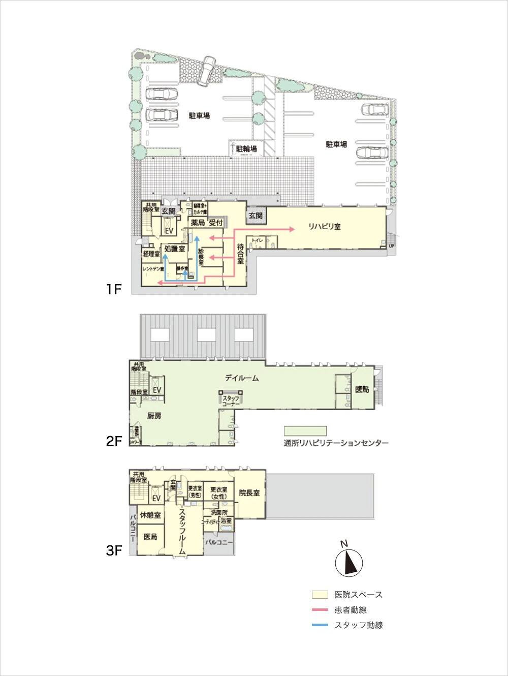
1階はクリニックと外来用のリハビリ室。東西に長いリハビリ室には、ベッドやリハビリ機器が効率的に配置されています。
レントゲン室は診察室からも処置室からもアクセスしやすく配置することで、作業効率の向上を図っています。
診察室は裏同線で繋がり、ドクターやスタッフの作業も効率的に、処置室・レントゲン室へのアクセスも合理的なプランとなっています。
待合室を診療スペースとリハビリ室の間に配置。診察の患者さんとリハビリの利用者が交差することなく目的の部屋に移動できます。
2階の通所リハビリセンター(デイケア)では、理学療法士が利用者に合わせた適切なリハビリテーションを提供。中央のスタッフコーナーから広い部屋全体に目が届くようになっています。
大きな空間には歩行や階段昇降など様々なリハビリ器具が用意され、地域のリハビリ拠点としての役割を担う良いんです。
施設情報
| 用途 | 医院専用 |
|---|---|
| 敷地面積 | 1130.68㎡ |
| 1F床面積 | 250.56㎡ |
| 2F床面積 | 254.76㎡ |
| 3F床面積 | 157.86㎡ |
| 延床面積 | 663.18㎡ |
|---|---|
| 医院部分面積 | 663.18㎡ |
| 駐車場台数 | 15台 |
| 担当支店 | 埼玉支店 |