アイクリニック高坂

  • 眼科

アイクリニック高坂

スタッフの能力を発揮させる、誇らしい環境とデザイン

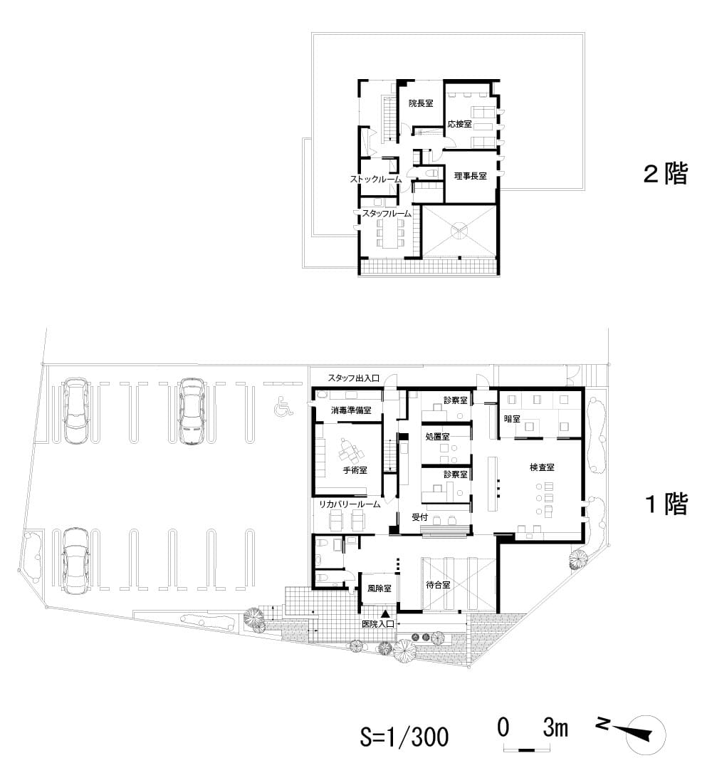
カフェのようなオシャレな外観で、地域のランドマーク的存在になりつつあるのが、アイクリニック高坂です。過去に、積水ハウスで内科と眼科を建築していただいた医療法人の新たな分院として建てられました。近隣の大学病院などと連携を取りながら、白内障・緑内障・硝子体などの外来手術を行う、充実した高度な医療を提供されています。

深い軒下スペースを設け、ベンチや石垣に腰掛けて外でも待てる様に。
また、車・自転車・徒歩それぞれの動線を分け、安全性に配慮しています。

M_241101_014tor.png

受付を入ると、天井高5mを超える吹き抜けと幅2.5mの大開口サッシを組み合わせた、気持ちの良い大空間が広がります。白基調の待合室は「患者さまの気持ちを明るくしたい」と、ホテルのロビーのように洗練された空間に。

M_241101_023tor.png

最新の医療機器をそろえた、もっとも設計面でこだわった手術室。高い技術を要する手術も行えるように、使い勝手はあらゆる角度から考えつくしました。将来的な大型医療機器の導入も念頭に、配置できるスペースも確保しています。

M_241101_020tor.png

スタッフ専用の動線。できるだけ無駄な動線を排除して、行き来しやすく、動きやすいように考えられています。

M_241101_018tor.png

明るく開放的な検査室。広々としたスペースで、スタッフが患者さまを効率よく誘導できるように設計しています。

M_241101_027.jpg

スタッフルームは、もっとも日当たりのよい場所に配置、窓から自然光を取り込みながらも、格子ルーバーを配して、道路側から見えない工夫も。オンオフを切り替えやすいよう、室内照明やインテリアを厳選して、くつろげる空間を演出しています。

施設情報

アイクリニック高坂
用途 医院専用
敷地面積 640.02㎡
1F床面積 225.17㎡
2F床面積 86.47㎡
担当支店 埼玉南支店

その他の建築実例