おおばやしマタニティクリニック

  • 産科
  • 婦人科

おおばやしマタニティクリニック

笑顔が集まるマタニティクリニックの理想的なかたち

 名古屋郊外のベッドタウン。ファミリー層にも人気の地にマタニティクリニックを計画するにあたり掲げた理念は「お母さんを笑顔に、赤ちゃんを笑顔に、スタッフを笑顔に、地域社会を笑顔に、関わる人々を笑顔に」というもの。通院と入院が必要な性質上、「従来の病院らしくない、愛される空間」を目指しました。

動画サムネイル

オーナーインタビュー

建てられたオーナー様にインタビューした動画です。
オーナー様の思いや工夫に触れてみてください。

S_220901_014tor.png

待合室とフラットにつながるテラスは、ときには外部の待合室、ときには日光浴の場、ときには子どもたちの賑やかな遊び場にとフレキシブルに使える中間領域として、クリニックの心地よさをより高めてくれます。風が通り、密になりにくいため、感染症の対策にも。妊婦さまやご家族もリラックスして過ごせると好評です。

S_220901_009tor.png

幹線道路側には開口部を設け、なかの様子が見えるようにして親しみある印象に。植物を目隠しに取り入れてプライバシーを守りつつ、景観美化にも努めました。「ここに来るとほっとする」という言葉を多々いただき、建築で多くの賞を受賞するなど、笑顔が集う場となりました。

S_220901_018tor.png

待合室や受付、廊下、問診室、個室の照明もやわらかな印象となるよう配置箇所と光量に配慮しました。目と心を和ませるよう、インドアグリーンの配置や照明計画にも配慮。

S_220901_013tor.png

定期的な通院で、長時間過ごすことが多い産科であるため、来院された方が心落ち着くよう、木をふんだんに使ったインテリアを心がけました。目指したのは、やすらぎと落ち着きを感じるカフェやホテルのような空間です。

S_220901_031tor.png

ご家族全員の思い出に残るよう、2Fのホールにはクリニックのロゴの前にフォトスポットを用意。

S_220901_036tor.png

個室は、産後のことを考えて動線をコンパクトにすむように設計しながら、壁紙は気分が明るくなるような印象のものを選んでいます。

S_220901_039tor.png

様々なバリエーションを持たせた病室、患者さまがゆったりとリラックスして院内で過ごせるよう、プラン、レイアウトも工夫をしています。

S_220901_044tor.png

スタッフルームは、効率のいい動線は確保しながらも、木調の天井やタイル張りの壁の内装、大きな丸いテーブルをシェアするスタイルなど従来のクリニックらしくない、温かな雰囲気です。理念のひとつ「スタッフを笑顔に」は、こんなところにもあらわされています。

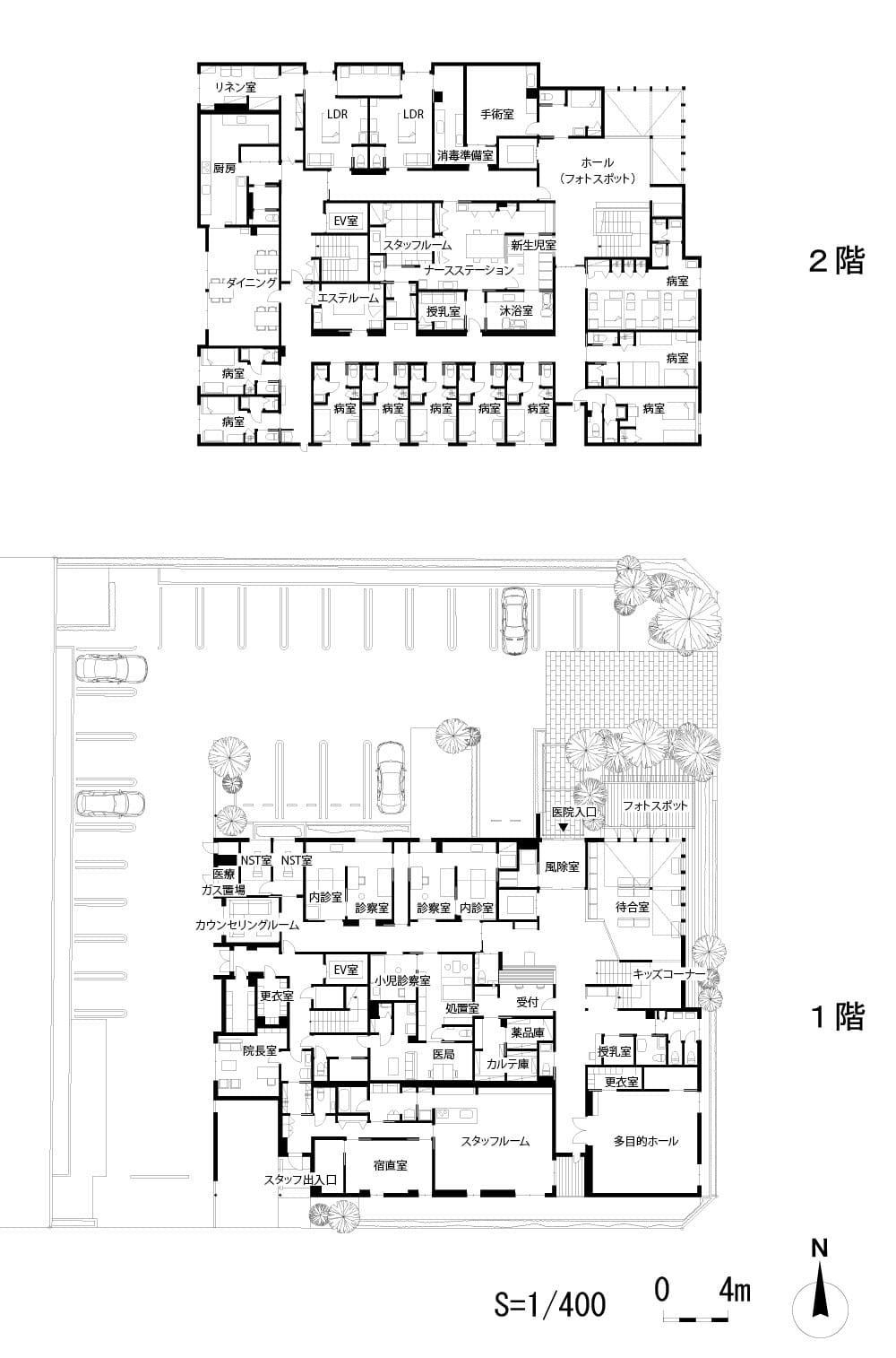
施設情報

おおばやしマタニティクリニック
用途 医院専用
敷地面積 1702.62㎡
1F床面積 613.58㎡
2F床面積 674,43㎡
担当支店 名古屋東支店

その他の建築実例