グループホーム(千葉県松戸市)
駅近の好立地の住宅街という環境に溶け込む「わが家」を感じさせる優しい佇まいの外観です。
南面の掃き出し窓の前面は垣根で緩やかに外部の視線を遮ります。
ゆったりとしたスペースの玄関ホールは、スリット窓からの優しい明るさをもたらしています。
バス・サニタリーは様々な動作や作業にもゆとりあるスペースが確保されています。
ブルーのアクセント壁がさわやかな印象のトイレ。
リビング・食堂からの通路は十分な広さで、木調の建具が温かみを感じさせます。
各居室は大きな開口からたっぷりと光が差し込む居心地のいい空間です。
キッチンに立ってもリビング・食堂空間の様子は伺え、かつ十分な収納も確保され、機能的にプランニングされています。
壁の角は緩やかなR処理が施されるなど、細やかな配慮もなされています。
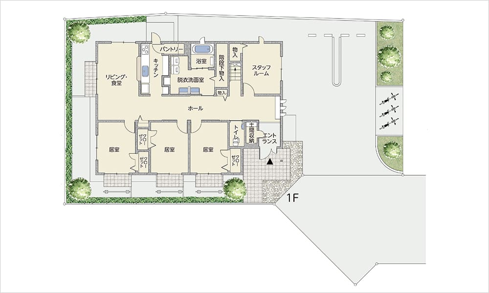
施設情報
| タイプ | グループホーム |
|---|---|
| 定員 | 9名 |
| 敷地面積 | 477.39㎡ |
| 1F床面積 | 135.44㎡ |
|---|---|
| 2F床面積 | 129.44㎡ |
| 延床面積 | 264.88㎡ |