コモンステージ宇治黄檗(うじおうばく)【分譲住宅】
京都府宇治市五ケ庄一番割46番11、46番12

室内外がフラットに繋がる20帖超のLDKで、ゆとりと寛ぎを愉しむ暮らし。ご家族の新たな物語を紡ぐ、3LDKの住まいです。
![]() 「家族の未来を見晴らす街」 【9号地・10号地/街並み】宇治市の高台に位置し、当分譲地から街を見晴らすことができます。緑に囲まれ、四季折々の自然と共にある暮らしが叶います。/2025年6月撮影 |
コモンステージ宇治黄檗分譲住宅/プライベート見学会ご予約受付中
京都エリアで住まいづくりをお考えの方におすすめです!
分譲地の雰囲気を現地でご体感ください。
お客様のご都合に合わせて、「知りたい情報だけ」という短時間のご案内・ご見学も可能です。
まずはお気軽にご来場予約をお申込みください。
【WEB予約特典:QUOカードPay2000円分プレゼント!】
◇おおよその流れや所要時間や内容は、下記をご参考ください◇
①資料請求、来場予約後、2~3日以内に担当からご連絡致します。
※連絡手段(メールや電話等)のご希望がある方は、事前にお知らせください。
②当日のご案内例は下記となります
■現地見学(15分~)
■ご希望条件やお困りごとの相談(30分~)
■資金計画のご相談(30分~)
■積水ハウスならではの設計事例、耐震性能、最先端の住宅設備ご紹介(30分~)
お客様の知りたい情報や、計画段階に合わせた資料のご準備、案内を致します。
◆積水ハウス(株)京都支店◆0120-794-018(営業時間:9時15分~18時/定休日:火曜日・水曜日・祝日)
詳しくはこちら
プラン
「コモンステージ宇治黄檗」で新生活を!
■9号地■
【9号地/外観】味わい深い表情を描き出す、美しく強い積水ハウスの最高級外壁「ダインコンクリート」を採用。光と影が織りなすデザイン性と、美しさを保つ機能性を備えています。/2025年6月撮影
■主要設備
●建物構造/軽量鉄骨造2階建
●建物設備/ダインコンクリート外壁、陶器瓦、防犯合わせガラス(1階全て・2階バルコニーに面するガラス)、天井高サッシ(LDK)
●建物仕様/ユニットバス1618サイズ、システムキッチン、食器洗い乾燥機、カップボード、LDK床暖房、照明器具(LED)、
エアコン2台(LDK・主寝室)、太陽光発電(約3.337kW)、エネファーム
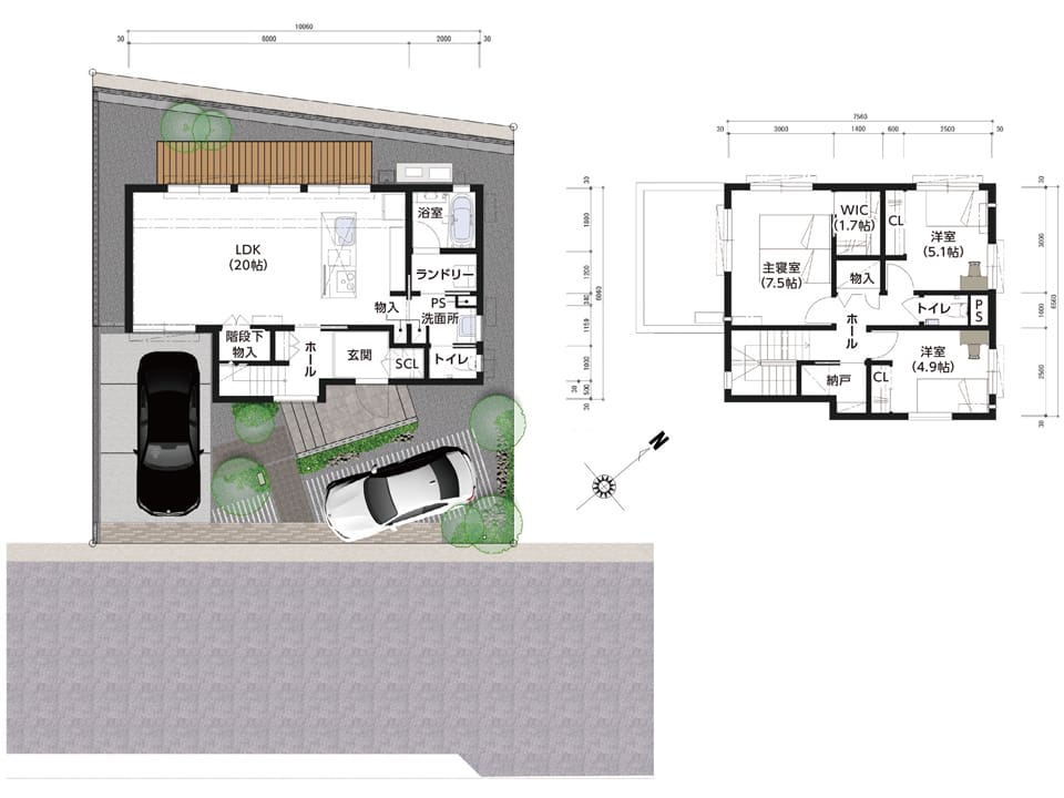
■敷地面積/152.17㎡(約46.03坪)
■延床面積/105.68㎡(約31.96坪)
●1階床面積/53.71㎡
●2階床面積/51.97㎡
※平面図に掲載の植栽は成長後のイメージに近い画像を用いていますが、販売時は苗木や緑量の少ない状態です。育成には数年を要するものもあり、成長後の形状も様々です。
※平面図・写真に掲載の家具や備品・車などは、販売価格に含まれません。
※LDK・洋室などの帖数は概算です。帖数は1帖を1.62㎡として計算しております。
※先着順にて販売中につき、売約済の場合がございます。予めご了承ください。
■9号地■
【9号地/ウッドデッキ】フルフラットのウッドデッキが内と外の一体感を高め、開放感をもたらします。ゆとりある空間で、のんびりとした寛ぎのひと時を。/2025年6月撮影
※写真に掲載の家具や備品・車などは、販売価格に含まれません。
※LDK・洋室などの帖数は概算です。帖数は1帖を1.62㎡として計算しております。
※先着順にて販売中につき、売約済の場合がございます。予めご了承ください。
■10号地■
【10号地/外観】安定した強度と耐久性を併せ持ち、日本の気候風土にも理想的な外壁「ダインコンクリート」を採用。高台の開放感を日常生活に取り込む、大空間LDKが魅力の住まいです。/2025年6月撮影
■主要設備
●建物構造/軽量鉄骨造2階建
●建物設備/ダインコンクリート外壁、陶器瓦、防犯合わせガラス(1階全て・2階バルコニーに面するガラス)、天井高サッシ(LDK)
●建物仕様/ユニットバス1618サイズ、システムキッチン、食器洗い乾燥機、カップボード、LDK床暖房、照明器具(LED)、
エアコン2台(LDK・主寝室)、太陽光発電(約3.337kW)、エネファーム
■敷地面積/151.95㎡(約45.96坪)
■延床面積/110.57㎡(約33.44坪)
●1階床面積/54.36㎡
●2階床面積/56.21㎡
※平面図・パースに掲載の植栽は成長後のイメージに近い画像を用いていますが、販売時は苗木や緑量の少ない状態です。育成には数年を要するものもあり、成長後の形状も様々です。
※平面図・写真・パースに掲載の家具や備品・車などは、販売価格に含まれません。
※LDK・洋室などの帖数は概算です。帖数は1帖を1.62㎡として計算しております。
※先着順にて販売中につき、売約済の場合がございます。予めご了承ください。
区画情報
全体区画図

街を見渡せる丘の上の分譲地。ゆとりある街区設計で、快適な日々を享受できます。
住みよい環境の整備および景観の形成を図る、「宇治市まちづくり景観条例」が指定されたエリアです。
区画図

ゆとりあるLDKや豊富な収納が魅力の2邸を分譲中です。
前面道路の幅員は約6m、お車の入出庫やすれ違いもスムーズに行えます。
- 号地
- 9号地
- 土地面積
- 152.17 ㎡(約46.03坪)
- 建物面積
- 105.68 ㎡(約31.96坪)
- 土地建物価格(税込)
- 6380万円
- 号地
- 10号地
- 土地面積
- 151.95 ㎡(約45.96坪)
- 建物面積
- 110.57 ㎡(約33.44坪)
- 土地建物価格(税込)
- 7287万円
アクセス/周辺マップ
交通アクセス図
JR奈良線「黄檗」駅へ徒歩16分(約1230m)、京阪宇治線「黄檗」駅へ徒歩21分(約1680m)と、2沿線利用可能。
自在なアクセスが、暮らしを快適にサポートします。
現地案内図
休日は少し足を延ばしてアル・プラザ 宇治東(徒歩26分/約2020m)へ。ご家族皆様でゆっくりショッピングを満喫できます。
教育施設や医療施設が点在する、幅広い世代が暮らしやすい環境です。
お問い合わせ
<お問合わせ先>
積水ハウス株式会社 京都支店定休日:火曜日、水曜日及び祝日 営業時間:9:15~18:00
TEL:0120-794-018
<広告主(事務所)>
積水ハウス株式会社 京都支店京都府京都市中京区烏丸通御池下る梅屋町358番地(アーバネックス御池ビル西館6階)
定休日:火曜日、水曜日及び祝日 営業時間:9:15~18:00
TEL:075-241-3670














