コモンステージ吹田円山町
大阪府吹田市円山町178番3他

阪急千里線「関大前」駅へ徒歩3分。賑やかな学生街から程よい距離を保つ駅西側、第一種低層住居専用地域内の分譲地です。
現地案内会【ご予約受付中】
★ご予約の上、ご来場いただいた方にはQUOカード2000円分プレゼント★
■現地にスタッフは常駐しておりませんので、ご見学の際は事前にお問い合わせください。
■平日・土日祝どちらでもご見学可能です。
※既に現地をご見学いただいている場合は、お近くの展示場やショールームにて、
周辺環境や間取りなどのご紹介も可能です。
■お客様のスケジュールに合わせてご案内いたします。
〇現地見学・・・周辺環境・建物価格目安などのご説明
〇お打合せや工期などスケジュールのご相談
〇構造や保証など、建物に関するご説明
〇住宅ローンや諸費用、税金など資金計画に関するご相談
※ご相談内容やお時間についてのご希望がございましたら、備考欄へご記入ください。
現地写真/参考プラン
角地を含むゆとりある敷地
広々とした全2区画の分譲地。阪急千里線「関大前」駅まで徒歩3分と、慌ただしい朝の時間にゆとりを持つことができます。/2025年1月撮影
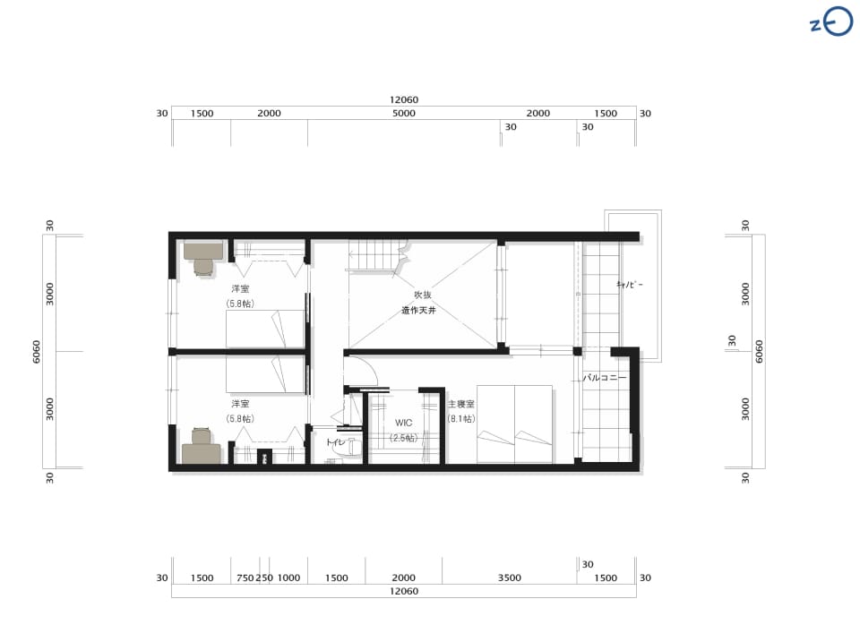
2号地参考プラン
【2号地参考プラン/外観パース】
土地価格/5640万円、敷地面積/175.01㎡(約52.94坪)。床面積/1階62.58㎡・2階57.99㎡、延床面積/120.57㎡(約36.47坪)。
■建物参考価格(建物本体価格・消費税込)/約6,050万円
※このプランの場合、外構工事費用、建築確認費用などで、約1,200万円が必要です。
※参考プランは、当社が紹介するプランの一例です。このプランを義務づけるものではありません。
※プラン中の家具・車などは、建物参考価格には含まれておりません。
※外観パース・内観パースは参考プランを基に描き起こしたイメージパースです。
※パースに描かれている樹木は、成長した数年後のイメージです。
区画情報
アクセス/周辺マップ
1 675 028*04掲載のマップコードは現地への誘導のため記載しております。カーナビでのご来場の際にご利用ください。
※「マップコード」および「MAPCODE」は(株)デンソーの登録商標です。
交通アクセス図
徒歩3分の阪急千里線「関大前」駅から「大阪梅田」駅へ22~25分と、ダイレクトに繋がります。
都心へ軽やかにアクセスでき、行動範囲がぐんと広がるポジションです。
広域図
複数の買い物施設が周辺に揃い、目的や気分に応じて使い分けることができます。
内科・小児科の診療を行う、ちばクリニックへ徒歩11分。ご家族のかかりつけ医として利用できます。
現地案内図
保育園・小中学校が徒歩10分圏内にあり、通園・通学がスムーズです。
遊具がある円山中央公園へは徒歩7分。入口にスロープが設置されているため、ベビーカーでも訪れやすいです。
お問い合わせ
<お問合わせ先>
積水ハウス株式会社 大阪北支店定休日:火曜日、水曜日及び祝日 営業時間:9:00~18:00
TEL:0120-43-0102
<広告主(事務所)>
積水ハウス株式会社 大阪北支店箕面市船場東1-10-33
定休日:火曜日、水曜日及び祝日 営業時間:9:00~18:00
TEL:072-726-2100







