コモンステージ栗東市小柿1丁目
滋賀県栗東市小柿1丁目391番12

46坪超の分譲地。「草津」駅周辺には百貨店やショッピングセンターがあり、お仕事帰りの買い物や、ご家族で休日のショッピングを楽しめます。
◇ご来場予約お待ちしております◇
「どんな間取りが建てられるの?」
「どんな土地で、周りはどんな施設があるの?」
「ほかにもいい土地ないかな・・・」お家づくりの悩みを、住まいのプロがサポートします!
■案内員が常駐しておりませんので、見学の際は事前にお問い合わせいただけますと幸いです。
■ご案内は平日・土日祝どちらも可能です。
◇ご来場いただいた際のご相談事例と所要時間例◇
お客様の知りたい内容に合わせて案内を実施しております!
(短時間・オンラインでのご相談も大歓迎です)
≪見学コース例≫
■現地見学(約15分)・・・周辺環境・建物価格目安・計画などのご説明
※現地を既にご見学いただいている場合、お近くのモデルハウスや展示場でも◎
■はじめてのマイホーム計画についてのご相談(約30分)
■建物の構造や保証に関するご相談(約30分)
■資金計画・税金・金利などお金に関するご相談(約30分)
相談内容や時間に関するご希望がありましたら備考欄にご記入ください。
お客様の希望する内容に沿ってご相談させていただきます♪
◆積水ハウス滋賀支店◆
現地写真/参考プラン
◆46坪超◆
【6号地】車通りのある道路から奥まった位置のため、プライバシーを大切にしたい方におすすめの区画です。敷地形状を活かしたプランで快適な住まいをご提案いたします。/2025年6月撮影
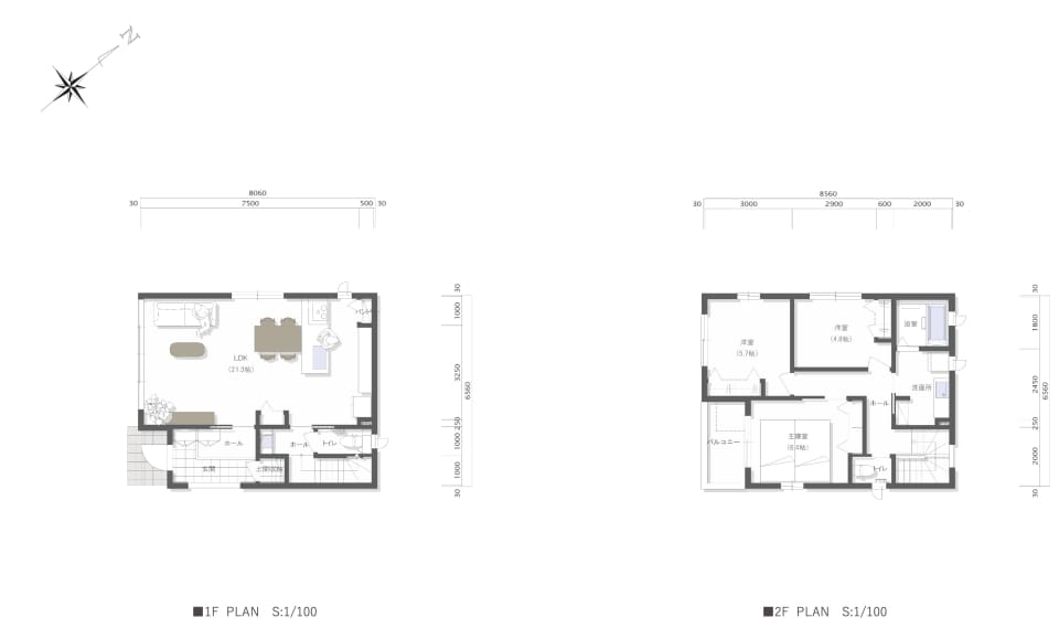
◆6号地参考プラン◆
【6号地参考プラン/外観パース】
土地価格/2194万円、敷地面積/154.99㎡(約46.88坪)。1階床面積/50.87㎡、2階床面積/51.65㎡、延床面積/102.52㎡(約31.01坪)。
■土地価格/2,194万円
■敷地面積/154.99㎡(約46.88坪)
■建物参考価格(建物本体価格+消費税込)/約4,400万円
■1階床面積/50.87㎡、2階床面積/51.65㎡、延床面積/102.52㎡(約31.01坪)
※このプランの場合、外構工事費用、基礎補強工事費用、登記費用、水道分担金などで、約480万円が別途必要です。
※この参考プランは、当社が紹介するプランの一例です。このプランを義務づけるものではありません。
※パースは参考プランを基に描き起こしたイメージパースで、樹木は成長した数年後のイメージです。
※プラン中の家具・車などは、建物参考価格には含まれておりません。
区画情報
アクセス/周辺マップ
交通アクセス図
JR「草津」駅から新快速利用で「京都」駅へ24分(通勤時)、「大阪」駅へ56分(通勤時)のダイレクトアクセス。
都心へスムーズに繋がり、気軽にお出かけを楽しめます。※2024年10月時点
現地案内図
小学校へ徒歩2分、習い事などで忙しいお子様の時間にゆとりが生まれる距離です。
さとこ内科クリニックへ徒歩8分、ご家族の急な体調不良時にも通いやすく、心強い住環境です。
お問い合わせ
<お問合わせ先>
積水ハウス株式会社 滋賀支店 守山展示場定休日:火曜日、水曜日 営業時間:9:00~18:00 ※購入申込は主たる事務所の滋賀支店で受付しております
TEL:077-583-3838
<広告主(事務所)>
積水ハウス株式会社 滋賀支店草津市渋川1丁目3番4号 近江伊吹館1階
定休日:火曜日、水曜日及び祝日 営業時間:9:00~18:00
TEL:077-565-1001






