コモンステージ泉ケ丘
福島県いわき市泉ケ丘2丁目21番2

JR常磐線「泉駅」まで車で7分、約1.6km『コモンステージ泉ケ丘』
●ヨークベニマルいわき泉店(徒歩17分)やツルハドラッグいわき玉露店(徒歩10分)など生活施設が周辺に揃う環境
●高台に位置
●イオンモールいわき小名浜まで車で15分(約7.1km)
●泉ヶ丘中央公園(徒歩4分)が近く緑豊かで落ち着いた雰囲気の閑静な分譲地
●前面道路幅員6m、二方道路
アクセス/周辺マップ
区画情報

- 号地
- 1号地
- 土地面積
- 209.74 ㎡(約63.44坪)
- 土地価格
- 1080万円
参考プランはこちら
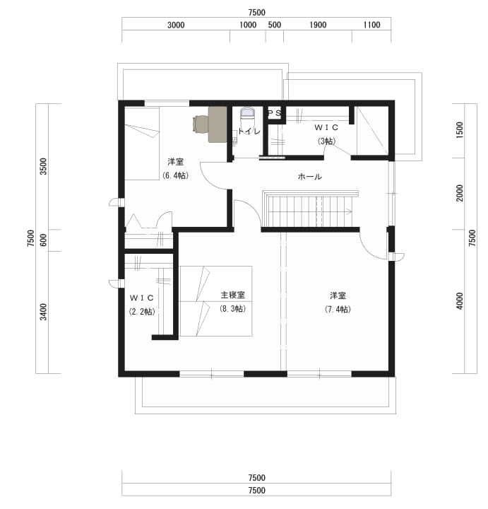
【参考プラン例】1号地/土地面積 209.74㎡(約63.44坪)土地価格 1,080万円
【参考プラン例】1階面積/53.11㎡ 2階面積/57.15㎡ 延床面積/110.26㎡(33.35坪)建物参考価格/4,000万円(建物本体価格+消費税込)
※参考プランは当社が紹介するプランの一例です。このプランを義務付けるものではございません。
※お客様のご要望に合わせたプランをご提案させて頂きます。
※プラン中の家具家電・車等は参考価格に含まれません。
※このプランの場合、外構工事費用・屋外給排水工事・地盤改良工事などで約500万円が別途必要となります。
《1号地の参考プラン例》北側外観パース
《参考プラン例:完成予想パース》
お問い合わせ
<お問合わせ先>
積水ハウス株式会社 福島支店定休日:火曜日、水曜日及び祝日 営業時間:9:00~18:00
TEL:024-933-8055
<広告主(事務所)>
積水ハウス株式会社 福島支店福島県郡山市本町一丁目4-8
定休日:火曜日、水曜日及び祝日 営業時間:9:00~18:00
TEL:024-933-8055







