宅地(建築条件付)

コモンステージ野田町2丁目

福島県福島市野田町2丁目189番10

生活利便施設が充実。JR福島駅西口まで徒歩約9分の立地。福島市野田町の分譲地「コモンステージ野田町2丁目」は、住宅の資産価値や快適さを長く保つように配慮しています。

福島市野田町にある積水ハウスの分譲地です。バス停「西部交番前」停留所まで徒歩約3分、JR東北本線福島駅西口まで「福島交通バス」に乗車で約5分の立地です。ヨークタウン野田、ファミリーマート福島駅西口店、リオンドール野田店は徒歩10分圏内にある利便性の良い立地です。敷地環境、気候風土、家族構成、ライフスタイルにお応えするため、「邸別自由設計」でお客様の夢をカタチにします。また、お引渡し後も計画的なメンテナンスを定期的にサポートし、住宅の資産価値や快適さを長く保つように配慮しています。

アクセス/周辺マップ

現地案内図

オンラインマップ

地図(Googlemap)

地図をGoogle mapで見る

区画情報


号地
2
土地面積
187.58 ㎡(約56.74坪)
土地価格
2210万円

参考プランはこちら

【参考プラン例】2号地 土地面積 /187.58㎡(約56.74坪)土地価格/ 2210万円

【参考プラン例】1F/60.24㎡ 2F/60.96㎡ 延床面積/121.20㎡(36.66坪)建物参考価格(建物本体価格+消費税込)/4600万円

*参考プランは、当社が紹介するプランの一例です。このプランを義務付けるものではございません。
*お客様のご要望に合わせたプランをご提案させて頂きます。
*プラン中の家具家電・車等は参考価格に含まれません。
*このプランの場合、外構工事費用・屋外給排水工事・地盤改良工事などで約650万円が別途必要となります。

《2号地の参考プラン例》

《参考プラン例:外観パース》北側外観パース

外構付き1階平面図
《参考プラン例:外構付き1階平面図》

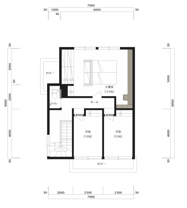
2階平面図
《参考プラン例:2階平面図》

1階リビングパース
【参考プラン例:内観パース】リビングの北側から南側を向いた内観パースです。

1階LDKパース
【参考プラン例:内観パース】リビングの西側から東側を向いた内観パースです。

1階リビングパース
【参考プラン例:内観パース】リビングの南側の窓から北側を向いた内観パースです。
土地面積 /187.58㎡(約56.74坪)土地価格/ 2210万円  1F/60.24㎡ 2F/60.96㎡ 延床面積/121.20㎡(36.66坪)建物参考価格(建物本体価格+消費税込)/4600万円 *参考プランは、当社が紹介するプランの一例です。このプランを義務付けるものではございません。 *お客様のご要望に合わせたプランをご提案させて頂きます。 *プラン中の家具家電・車等は参考価格に含まれません。 *このプランの場合、外構工事費用・屋外給排水工事・地盤改良工事などで約650万円が別途必要となります。

お問い合わせ

<お問合わせ先>
積水ハウス株式会社  福島支店定休日:火曜日、水曜日及び祝日 営業時間:9:00~18:00

TEL:024-933-8055

<広告主(事務所)>
積水ハウス株式会社  福島支店福島県郡山市本町一丁目4-8
定休日:火曜日、水曜日及び祝日 営業時間:9:00~18:00

TEL:024-933-8055

近隣物件

これまでに見た分譲住宅・土地

おすすめのトピックス