コモンステージ福知山篠尾―三守の丘―【分譲住宅】
京都府福知山市字篠尾小字高貝1048番17他

こどもたちの成長を見守り、災害から身を守り、福知山の景観を美守る。3つの「み」を守るまち。ご家族の笑顔あふれる、積水ハウスの住まい。
現地案内会
◇ご来場予約お待ちしております◇
「どんな間取りが建てられるの?」
「ほかにもいい土地ないかな...」お家づくりの悩みを、住まいのプロがサポートします!
■案内員が常駐しておりませんので、見学の際は事前にお問い合わせいただけますと幸いです。
■ご案内平日・土日祝どちらも可能です。
◇ご来場いただいた際のご相談事例と所要時間例◇
お客様の知りたい内容に合わせて案内を実施しております!
(短時間・オンラインでのご相談も大歓迎です)
≪見学コース例≫
■現地見学(約15分)・・・周辺環境・建物価格目安・計画等のご説明
※現地を既にご見学いただいている場合、お近くのモデルハウスや展示場でも◎
■はじめてのマイホーム計画についてのご相談(約30分)
■建物の構造や保証に関するご相談(約30分)
■資金計画、税金、金利などお金に関するご相談(約30分)
相談内容や時間に関するご希望がありましたら備考欄にご記入ください。
お客様の夢の住まいの実現に向けて、当社スタッフ一同でお手伝いいたします。
担当:積水ハウス(株)近畿西支店
詳しくはこちら
プラン
◆17号地◆
【17号地/外観パース】
木造住宅「シャーウッド」。水平基調のデザインは、シンプルで奥行きのある佇まいを生み、機能と美しさが一体となっています。
■敷地面積/165.68㎡(約50.11坪)
■延床面積/112.25㎡(約33.95坪)
●1階床面積/62.50㎡
●2階床面積/49.75㎡
※掲載の建物完成予想図は、図面をもとに書き起こしたもので、屋根・外壁の色など、実際とは多少異なる場合があります。
※平面図・パースに掲載の植栽は成長後のイメージに近い画像を用いていますが、販売時は苗木や緑量の少ない状態です。育成には数年を要するものもあり、成長後の形状も様々です。
※平面図・パースに掲載の家具や備品、車などは、販売価格に含まれません。
※洋室などの帖数は概算です。帖数は1帖を1.6562㎡として計算しております。
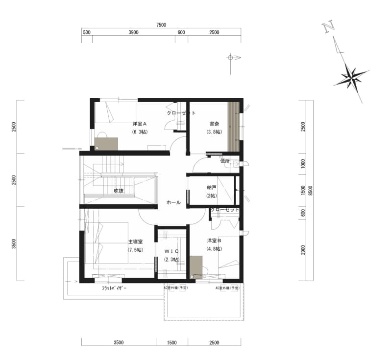
◆19号地◆
【19号地/外観パース】
角地に建つ開放的な一邸。階段下に、おこもり感のある居心地のよい空間「ヌック」を設けました。 カースペースや、ウッドデッキのある庭など、ゆとりあるエクステリアも魅力。
■敷地面積/173.29㎡(約52.42坪)
■延床面積/122.77㎡(約37.13坪)
●1階床面積/63.12㎡
●2階床面積/59.65㎡
※掲載の建物完成予想図は、図面をもとに書き起こしたもので、屋根・外壁の色など、実際とは多少異なる場合があります。
※平面図・パースに掲載の植栽は成長後のイメージに近い画像を用いていますが、販売時は苗木や緑量の少ない状態です。育成には数年を要するものもあり、成長後の形状も様々です。
※平面図・パースに掲載の家具や備品、車などは、販売価格に含まれません。
※洋室などの帖数は概算です。帖数は1帖を1.6562㎡として計算しております。
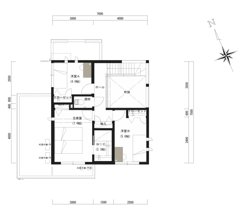
◆20号地◆
【20号地/外観パース】
2方向が道路に面した、光と風が通り抜ける住まい。街並みと調和するエクステリアが、豊かな表情を生み出します。※将来にわたり採光・通風を保証するものではありません。
■敷地面積/170.17㎡(約51.47坪)
■延床面積/113.32㎡(約34.27坪)
●1階床面積/67.12㎡
●2階床面積/46.20㎡
※掲載の建物完成予想図は、図面をもとに書き起こしたもので、屋根・外壁の色など、実際とは多少異なる場合があります。
※平面図・パースに掲載の植栽は成長後のイメージに近い画像を用いていますが、販売時は苗木や緑量の少ない状態です。育成には数年を要するものもあり、成長後の形状も様々です。
※平面図・パースに掲載の家具や備品などは、販売価格に含まれません。
※洋室などの帖数は概算です。帖数は1帖を1.6562㎡として計算しております。
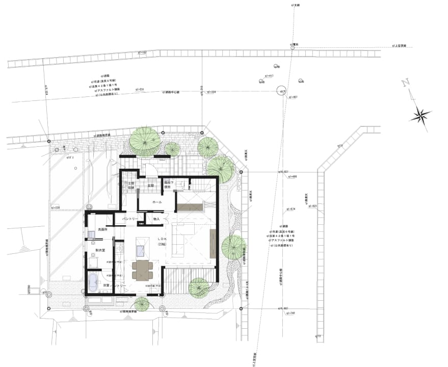
区画情報
区画図

全27区画の分譲地。「まち全体の美しさ」を守るため、「まちなみガイドライン」を作成しています。
前面道路の幅員は約6.0mとゆとりがあるため、お車の入出庫をスムーズに行えます。
- 号地
- 17
- 土地面積
- 165.68 ㎡(約50.11坪)
- 建物面積
- 112.25 ㎡(約33.95坪)
- 土地建物価格(税込)
- 6216.9万円
- 号地
- 19
- 土地面積
- 173.29 ㎡(約52.42坪)
- 建物面積
- 122.77 ㎡(約37.13坪)
- 土地建物価格(税込)
- 5987.3万円
- 号地
- 20
- 土地面積
- 170.17 ㎡(約51.47坪)
- 建物面積
- 113.32 ㎡(約34.27坪)
- 土地建物価格(税込)
- 6455.6万円
アクセス/周辺マップ
広域図
JR「福知山」駅へ徒歩15分のロケーション。
フレスポ福知山や福知山市民病院など、ご家族の日常に寄り添う生活利便施設が点在しています。
お問い合わせ
<お問合わせ先>
積水ハウス株式会社 近畿西支店定休日:火曜・水曜・祝日 営業時間:9:00~18:00
TEL:0773-22-1403
<広告主(事務所)>
積水ハウス株式会社 近畿西支店京都府福知山市厚東町2番地
定休日:火曜・水曜・祝日 営業時間:9:00~18:00
TEL:0773-22-1403











