コモンステージ越前市北千福分譲住宅
福井県越前市北千福町26番1

それぞれのお気に入りの場所で過ごしながら、お互いの存在を感じられる平屋の住まい。フラットフロア&効率的な家事動線がゆとりの時間を生み出します。
現地案内会
◇ご来場予約お待ちしております◇
「どんな間取りが建てられるの?」
「ほかにもいい土地ないかな...」お家づくりの悩みを、住まいのプロがサポートします!
■案内員が常駐しておりませんので、見学の際は事前にお問い合わせいただけますと幸いです。
■ご案内平日・土日祝どちらも可能です。
◇ご来場いただいた際のご相談事例と所要時間例◇
お客様の知りたい内容に合わせて案内を実施しております!
(短時間・オンラインでのご相談も大歓迎です)
≪見学コース例≫
■現地見学(約15分)・・・周辺環境・建物価格目安・計画等のご説明
※現地を既にご見学いただいている場合、お近くのモデルハウスや展示場でも◎
■はじめてのマイホーム計画についてのご相談(約30分)
■建物の構造や保証に関するご相談(約30分)
■資金計画、税金、金利などお金に関するご相談(約30分)
相談内容や時間に関するご希望がありましたら備考欄にご記入ください。
お客様の夢の住まいの実現に向けて、当社スタッフ一同でお手伝いいたします。
担当:積水ハウス(株)近畿西支店 福井オフィス
詳しくはこちら
プラン
美しい佇まいを、いつまでも
【外観パース】
建物の安全性を確保しながら、自然素材の優しさと自由さを表現する「シャーウッド」。積水ハウス独自の構法が生み出す、木のぬくもりを感じる空間が広がります。
■敷地面積/221.74㎡(約67.07坪)
■延床面積/99.48㎡(約30.09坪)
※平面図・パースに掲載の植栽は成長後のイメージに近い画像を用いていますが、販売時は苗木や緑量の少ない状態です。育成には数年を要するものもあり、成長後の形状も様々です。
※平面図・パースに掲載の家具や備品等は、販売価格に含まれません。
※洋室等の帖数は概算です。帖数は1帖を1.6562㎡として計算しております。
◇シャーウッド平屋
◆ベルバーン外壁
◆太陽光発電システム(約3.009kW)
◆エコキュート(オール電化)
◆エアコン(2台)
◆LED照明器具
◆床暖房
◆システムキッチン(フロントオープン)、食器洗い乾燥機、カップボード
◆ユニットバス1618サイズ
◆天井高2700mm
住みやすさが続く家
【主寝室/内観パース】
約6.9帖の主寝室。間接照明が、プライベートな時間を優しく照らします。約2.3帖のWICを備えており、大きめのお荷物や寝具などもたっぷりと収納できます。
内と外を緩やかにつなぐ
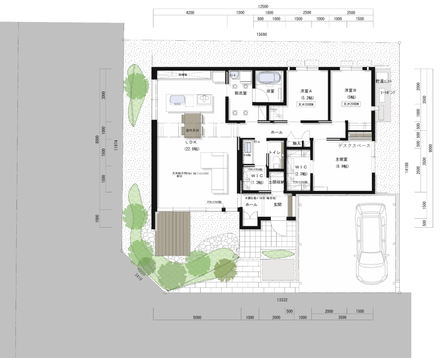
【平面図】
土間収納やWICなど、随所に収納を設けた住まい。上下階の移動がなく、効率的な家事動線が実現します。カースペースや、ウッドデッキのある南庭など、ゆとりあるエクステリアも魅力です。
区画情報
区画図

2方が道路に面した開放的な敷地です。
前面道路の幅員は西側約12m、南側約8m。お車の出入庫もゆとりを持って行えます。
角は隅切りにより見通しを確保、歩行時の安全性にも配慮しています。
- 号地
- A
- 土地面積
- 221.74 ㎡(約67.07坪)
- 建物面積
- 99.48 ㎡(約30.09坪)
- 土地建物価格(税込)
- 6320万円
周辺マップ
現地案内図
バロー 武生店・クスリのアオキ 高瀬店・ダイソー 富士屋武生店など、普段使いできる施設が徒歩7分圏内に揃います。
絵本の世界が広がる武生中央公園へ徒歩8分、気軽に足を運び、体を動かして遊べます。
お問い合わせ
<お問合わせ先>
積水ハウス株式会社 近畿西支店 福井オフィス定休日:火曜日、水曜日及び祝日 営業時間:9:00~18:00
TEL:0776-25-2828
<広告主(事務所)>
積水ハウス株式会社 近畿西支店 福井オフィス〒918-8239 福井県福井市成和2丁目1108番地
定休日:火曜日、水曜日及び祝日 営業時間:9:00~18:00
TEL:0776-25-2828











