コモンステージ国立東【分譲住宅】
東京都国立市東1丁目19番69

唯一無二の一邸が育む、愛着という物語を編み込む暮らし。21帖超の大空間LDKで、ゆとりと寛ぎを愉しむ日々をお過ごしください。
現地案内会
◇ご来場予約お待ちしております◇
「注文住宅と分譲住宅の違いは?」「分譲住宅のメリットは?」
皆様の気になるご質問にお答えさせていただきます。
(短時間・オンラインでのご相談も大歓迎です)
≪見学コース例≫
■現地見学(約15分)・・・周辺環境・建物見学・設備等のご説明
※現地を既にご見学いただいている場合、お近くのモデルハウスや展示場でも◎
■マイホーム計画についてのご相談(約20分)
■建物の構造や保証に関するご相談(約20分)
■資金計画、税金、金利などお金に関するご相談(約20分)
相談内容や時間に関するご希望がありましたら備考欄にご記入ください。
お客様の希望する内容に沿ってご相談させていただきます。
プラン
No.3
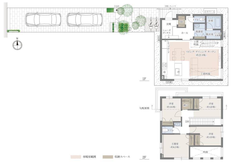
【外観パース】軽量鉄骨住宅「IS」。植栽の緑と調和する、美しく重厚感のある佇まいです。玄関部分には目隠しフェンスを設けており、プライバシーに配慮しています。
■敷地面積/141.53㎡(約42.81坪)
■延床面積/109.94㎡(約33.25坪)
●1階床面積/59.93㎡
●2階床面積/50.01㎡
※パース・平面図に掲載の家具や備品などは、販売価格に含まれておりません。
※パース・平面図に掲載の植栽は成長後のイメージに近い画像を用いていますが、販売時は苗木や緑量の少ない状態です。育成には数年を要するものもあり、成長後の形状も様々です。
※洋室などの帖数は概算です。帖数は1帖を1.6562㎡として計算しております。
No.3
【内観パース/LDK】家族団欒の時間を育むLDKは、ゆとりある21帖超。リビング階段を採用した、ご家族が顔を合わせる機会が自然と増える住まいです。
※パースに掲載の家具や備品などは、販売価格に含まれておりません。
区画情報
区画図

プライバシーを守りやすい旗竿地に構える、4LDKの住まいです。
前面道路の幅員は約5.4mあり、お車の出入庫もスムーズに行えそうです。
- 号地
- No.3
- 土地面積
- 141.53 ㎡(約42.81坪)
- 建物面積
- 109.94 ㎡(約33.25坪)
- 土地建物価格(税込)
- 1億5500万円
アクセス/周辺マップ
交通アクセス図
JR中央線「国立」駅へ徒歩6分。「新宿」駅や「東京」駅にスムーズにアクセスできます。
通勤に便利なのはもちろん、休日のお出かけ範囲も広がりそうです。
現地案内図
紀ノ国屋 国立店へ徒歩5分、nonowa 国立まで徒歩7分。食料品から手土産まで、必要なものが身近に揃います。
保育園へ徒歩3分、国立さくら病院へ徒歩1分。子育てしやすい環境も整っています。
お問い合わせ
<お問合わせ先>
積水ハウス株式会社 東京営業本部定休日:火曜日・水曜日・祝日 営業時間:9:00~18:00 ※当会場では、購入のお申し込みは受け付けておりません。
TEL:0120-776-511
There’re staffs who speak English and Chinese.
Tell the staff ’I want to consult in ENG/Chinese’, your name and phone number.
<広告主(事務所)>
積水ハウス株式会社 多摩支店東京都立川市曙町2-37-7 コアシティ立川1F
定休日:火曜日・水曜日・祝日 営業時間:9:00~18:00
TEL:042-540-8011







