コモンステージ八日市上之町Ⅲ 分譲宅地
滋賀県東近江市八日市 上之町325番14

買い物・医療施設が徒歩5分圏内。利便性と穏やかな住環境を享受する立地です。ご家族の歴史を紡ぐ一邸を、積水ハウスでカタチにしませんか。
![]() |
◇プライベート見学会ご予約受付中◇
◇ご来場予約お待ちしております◇
「どんな間取りが建てれるの?」
「ほかにもいい土地ないかな...」お家づくりの悩みを、住まいのプロがサポートします!
■案内員が常駐しておりませんので、見学の際は事前にお問い合わせいただけますと幸いです。
■ご案内平日・土日祝どちらも可能です。
◇ご来場いただいた際のご相談事例と所要時間例◇
お客様の知りたい内容に合わせて案内を実施しております!
(短時間・オンラインでのご相談も大歓迎です)
≪見学コース例≫
■現地見学(約15分)・・・周辺環境・建物価格目安・計画等のご説明
※現地を既にご見学いただいている場合、お近くのモデルハウスや展示場でも◎
■はじめてのマイホーム計画についてのご相談(約30分)
■建物の構造や保証に関するご相談(約30分)
■資金計画、税金、金利などお金に関するご相談(約30分)
相談内容や時間に関するご希望がありましたら備考欄にご記入ください。
お客様の夢の住まいの実現に向けて、当社スタッフ一同でお手伝いいたします。
担当:積水ハウス(株)滋賀支店 イズ近江八幡展示場
現地写真/参考プラン
◆ゆとりある56坪超◆
【6号地】敷地面積約56.56坪。お庭をご検討いただける、ゆとりある広さです。南向きにつき、採光を確保しやすいです。※将来にわたり採光を保証するものではありません。/2025年6月撮影
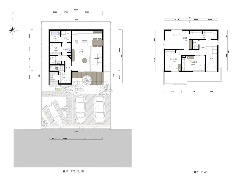
◆6号地参考プラン◆
【6号地参考プラン/外観パース】
土地価格/1545.3万円、敷地面積/186.99㎡(約56.56坪)。1階床面積/59.25㎡、2階床面積/55.25㎡(内、吹抜け面積/8.00㎡含む)、延床面積/114.50㎡(約34.63坪)。
■土地価格/1,545.3万円
■敷地面積/186.99㎡(約56.56坪)
■建物参考価格(建物本体価格+消費税)/約4,152.5万円
■1階床面積/59.25㎡、2階床面積/55.25㎡(内、吹抜け面積/8.00㎡含む)、延床面積/114.50㎡(約34.63坪)
※このプランの場合、外構工事費用、基礎補強工事費用、水道分担金費用などで、約450万円が別途必要です。
※この参考プランは、当社が紹介するプランの一例です。このプランを義務づけるものではありません。
※プラン内の家具・家電・小物などは、建物参考価格には含まれておりません。
※掲載のパースは参考プランを基に描き起こしたイメージです。
※植栽の様子は、成長した数年後のイメージです。
区画情報
区画図

敷地面積56坪超、南向きの区画を分譲中です。
前面道路の幅員は約9.6mとゆとりがあり、車の入出庫をスムーズに行うことができます。
- 号地
- 6
- 土地面積
- 186.99 ㎡(約56.56坪)
アクセス/周辺マップ
交通アクセス図
徒歩16分の「八日市」駅から、近江鉄道・JRが乗り入れる「近江八幡」駅へ乗車24分。
「彦根」駅へ乗車40分、「京都」駅へ乗車75分。主要部へアクセスしやすく、毎日の通勤・通学をサポートします。
現地案内図
徒歩4分の西友 八日市店のほかに、様々なジャンルの専門店が入るアピアも普段使いできる恵まれた立地。
周囲は平坦地ですので、毎日のお買い物やお子様の送迎時に、自転車利用も検討できます。
お問い合わせ
<お問合わせ先>
積水ハウス株式会社 滋賀支店 イズ近江八幡展示場定休日:火曜日、水曜日及び祝日 営業時間:10:00~18:00 ※当会場では、購入のお申し込みは受け付けておりません。
TEL:0748-33-9431
<広告主(事務所)>
積水ハウス株式会社 滋賀支店〒525-0026 滋賀県草津市渋川1丁目3番4号 近江伊吹館1階
定休日:火曜日、水曜日及び祝日 営業時間:9:00~18:00
TEL:077-565-1001 〈通話料無料電話〉0120-543-310




