コモンステージ西荘
岐阜県岐阜市西荘1丁目3番8

JR東海道本線「西岐阜」駅まで徒歩12分(約920m)、都市の利便性と豊かな自然環境を併せ持つ住環境。
JR東海道本線「西岐阜」駅から名古屋方面へのアクセスが良好です。県道77号線や92号線へすぐ出られるのでお車をよく使う方にとっても便利な場所です。
三心鏡島店まで徒歩6分(約480m)、スギ薬局鏡島店まで徒歩11分(約860m)と利便性の高いエリアでありながら分譲地周辺は自然が多く落ち着いた雰囲気です。
大きく開けた空から陽光がそそぐ全4区画。敷地形状や日当たり、それぞれに魅力ある区画で住まいづくりの選択肢が広がります。家族構成やライフスタイルに合わせたプランをご提案いたします。
現地写真
豊かな陽光がそそぐ空間で心地よい時間を。
どの区画も南からの陽光をたっぷり取り込むことができます。道路との高低差も少なく、外構は段差が少なく計画できるので、将来も安心してお過ごしいただけます。/航空写真(2024年6月撮影)
毎日の通勤通学が便利に、週末のおでかけも楽しみになる場所。
大きく開けた空から陽光がそそぐ全4区画。それぞれの区画で家族構成やライフスタイルに合わせたプランをご提案いたします。/航空写真(2024年6月撮影)
理想やライフスタイルに寄り添う分譲地。
隣棟間隔が取れるようにプランニングすることで、風通しと日当たりを確保できます。採光、通風、間取りなど、それぞれの土地に合わせたプランをご提案いたします。/現地写真(2025年7月撮影)
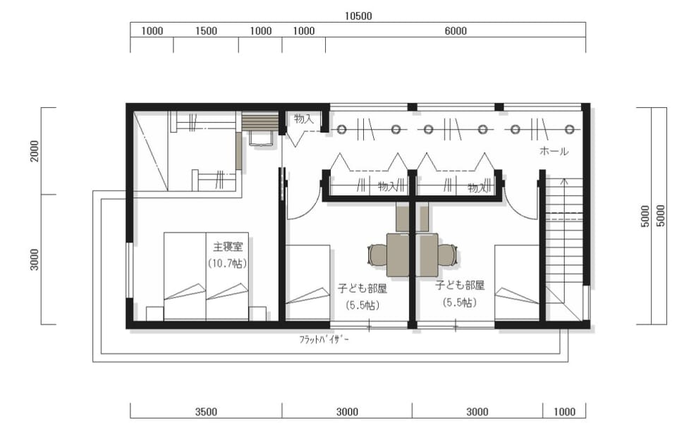
【参考プラン】
《2号地:参考プラン:外観パース》
【土地価格/1630万円、敷地面積/168.19㎡(50.87坪)】1F床面積/51.75㎡、2F/52.50㎡、延床面積/104.25㎡(31.53坪)
■土地価格/1630万円
■敷地面積/168.19㎡(50.87坪)
■建物参考価格(建物本体価格+消費税込)/4300万円
■1F床面積/51.75㎡、2F/52.50㎡、延床面積/104.25㎡(31.53坪)
このプランの場合、外構工事費用、屋外給排水工事費用、地盤改良費用などで、約620万円が別途必要です。
※参考プランは、当社が紹介するプランの一例です。このプランを義務づけるものではありません。
※プラン中の家具・車等は、建物参考価格に含まれておりません。
※外観パース・内観パースは参考プランを基に描き起こしたイメージパースです。
※パースに描かれている樹木は、成長した数年後のイメージです。
内観パース
《2号地:参考プラン:内観パース》
区画情報
アクセス/周辺マップ
28 552 799*76掲載のマップコードは現地への誘導のため記載しております。カーナビでのご来場の際にご利用ください。
※「マップコード」および「MAPCODE」は(株)デンソーの登録商標です。
都市機能と自然のバランスが良い住環境。
スーパーやドラッグストアが徒歩12分(約860m)圏内に揃う利便性に富んだエリア。岐阜市民病院も徒歩11分(約880m)と近く、ご家族の万が一にも対応できます。
お問い合わせ
<お問合わせ先>
積水ハウス株式会社 本店定休日:火曜日、水曜日及び祝日 営業時間:9:00~18:00
TEL:0120-097-971
<広告主(事務所)>
積水ハウス株式会社 岐阜支店岐阜市市橋3丁目4番8号
定休日:火曜日、水曜日及び祝日 営業時間:9:00~18:00
TEL:058-268-7611










