コモンステージ市橋Ⅲ北街区
岐阜県岐阜市今嶺3丁目12番6

JR東海道本線「西岐阜」駅まで徒歩17分(約1300m)、岐阜市街地や名古屋方面への移動にも便利。教育施設、医療施設も充実しており、ご家族皆様にとって嬉しい住環境。
各務原や大垣方面へ繋がる国道21号線至近。JR東海道本線「西岐阜」駅まで徒歩17分(約1300m)。市橋小学校まで徒歩8分(約600m)と近く、お子さまも無理なく通うことができます。利便施設や公共施設、医療施設も徒歩15分圏内に揃う、住み心地の良いエリアです。幅約10mの南面道路に面した区画で、たっぷりの日差しを確保することができます。自然あふれる環境で豊かに暮らす住まいをご提案します。
現地写真
岐阜の山々を眺め、利便性も高い穏やかな住環境で暮らす。
国道21号線が近い為、車での移動が多いご家族にも嬉しい立地。JR東海道本線「西岐阜」駅まで徒歩17分と、電車での移動も便利。休日の選択肢が広がります。/航空写真(2022年10月撮影)
小学校まで徒歩8分、駅まで17分とアクセスしやすい立地。
住宅も多くコミュニティで子ども達を見守りながら通学させることができます。子育て世帯に嬉しい住環境が整った立地で毎日を彩るこだわりのマイホームを。/現地写真(2022年10月撮影)
角に位置する区画で、多方から自然光と風を取り込みやすい立地。
南側前面道路約10m公道に面した敷地です。角地のため、2方向から自然光と風を取り込みやすく、開放的な空間づくりができます。/現地写真(2022年10月撮影)
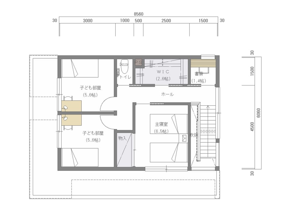
【参考プラン】
《1号地:参考プラン:外観パース》
【土地価格/1690万円、敷地面積/168.79㎡(51.05坪)】 1F床面積/65.17㎡、2F/49.42㎡、延床面積/114.59㎡(34.66坪)。
■土地価格/1690万円
■敷地面積/168.79㎡(51.05坪)
■建物参考価格(建物本体価格+消費税込)/4380万円
■1F床面積/65.17㎡、2F/49.42㎡、延床面積/114.59㎡(34.66坪)
このプランの場合、外構工事費用、屋外給排水工事費用、地盤改良費用などで、約920万円が別途必要です。
※参考プランは、当社が紹介するプランの一例です。このプランを義務づけるものではありません。
※プラン中の家具・車等は、建物参考価格には含まれておりません。
※外観パース・内観パースは参考プランを基に描き起こしたイメージパースです。
※パースに描かれている樹木は、成長した数年後のイメージです。
内観パース
《1号地:参考プラン:内観パース》
区画情報
アクセス/周辺マップ
28 521 252*18掲載のマップコードは現地への誘導のため記載しております。カーナビでのご来場の際にご利用ください。
※「マップコード」および「MAPCODE」は(株)デンソーの登録商標です。
東海道本線や21号線等、電車や車で様々な場所にアクセス良好。
周辺には商業施設、郵便局等の利便施設や、美術館や科学館などの公共施設もあります。各務原や大垣方面へ繋がる国道21号線にも近く便利です。岐阜駅まで電車で一駅と、様々な移動場面でスムーズな住環境です。
お問い合わせ
<お問合わせ先>
積水ハウス株式会社 本店定休日:火曜日、水曜日及び祝日 営業時間:9:00~18:00 ※当会場では購入申し込みは受け付けておりません。
TEL:0120-097-971
<広告主(事務所)>
積水ハウス株式会社 岐阜支店岐阜市市橋3丁目4番8号
定休日:火曜日、水曜日及び祝日 営業時間:9:00~18:00
TEL:058-268-7611











