間取りプラン
住宅展示場詳細
- 所在地
- 〒471-0873 豊田市秋葉町4丁目75番地(とよたハウジングガーデン内)
- 電話番号
- 0120-81-7011
- 受付時間
- 09:00〜18:00
- 定休日
- 火・水定休日
- 担当
- 岡崎支店
- 商品名
- イズ
- 構造
- 鉄骨2階
- 設備・仕様
-
- 共働き
- 空間
-
- 吹き抜け
- 都市型
- 大空間リビング
- 在宅コーナー
- 面積
-
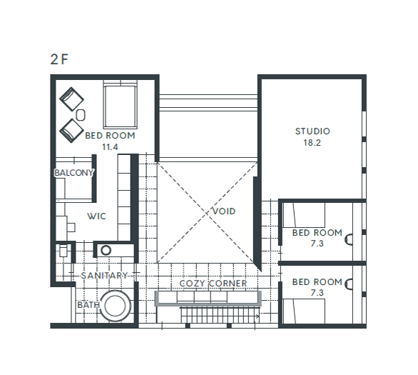
- 1F PLAN
- 116.5m²
- 2F PLAN
- 129.56m²
- 延床面積
- 246.06m²
施設のユニバーサルデザイン
- 駐車場(車いす用・一般)
- 車いす専用あり(施設共用部分)
- 車いす対応トイレ
- あり(施設共用部分)
- オストメイト対応トイレ
- あり(施設共用部分)
- 聴覚障がい者向け筆談対応
- あり
- 授乳室
- あり(施設共用部分)
- おむつ替えスペース
- あり(施設共用部分)
展示場スタッフより
- 美を宿す日常へ -
DESIGN OFFICEが創り上げる
世界でただ一つの邸宅がひとつ誕生しました。
積水ハウスの最新の技術・デザインを、
是非一度この空間でご体感ください。
積水ハウスの木造住宅「シャーウッド」も
同時にご案内が可能です。
まずは【ご来場予約】よりご予約ください。
スタッフ紹介
近隣の住宅展示場・ショールーム・モデルハウス
イズ豊田展示場で開催予定のイベント
愛知県のイベント情報一覧あなたの条件に合う新着イベント情報をお届け!
「当日予定があってどうしても都合が合わない!」「住まいづくりのイベント情報をもっと知りたい!」という方のために、ご登録いただいた条件に合った新着イベント情報をメールでお知らせいたします。
ご登録はこちら

