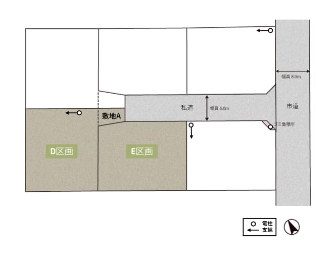
神栖市大野原中央2丁目
茨城県神栖市大野原中央2丁目3798番12他
アクセス/周辺マップ
お問い合わせ
<お問合わせ先>
積水ハウス株式会社 千葉支店 不動産課定休日:火曜日、水曜日及び祝日 営業時間:9:00~18:00
TEL:0120-685-261
<広告主(事務所)>
積水ハウス株式会社 千葉支店千葉県千葉市中央区問屋町1-35(千葉ポートサイドタワー10階)
定休日:火曜日、水曜日及び祝日 営業時間:9:00~18:00
TEL:0120-685-261

