コモンステージ大道町
大分県大分市大道町5丁目65番6、65番12(1号地)、65番20(2号地)

大分市中部に近く、JR大分駅や駅周辺の商業施設へも徒歩圏内。分譲地の近くには生活施設もそろう暮らしやすい環境です。
・東大道2丁目バス停まで徒歩4分、JR大分駅(上野の森口)まで徒歩13分。交通の利便性が高いエリアなので、通勤通学に大変便利。
・国道210号線と県道21号線、どちらにも近く市内外へ車での移動がスムーズです。
・大道小学校まで徒歩11分、王子中学校まで徒歩18分、子育て世代にも安心の環境です。
・徒歩10分圏内にスーパーがあり、普段の生活に便利な環境です。
・大規模な洪水や浸水のリスクが低く、安心なエリアです。
≪美しいまちなみ、安全で暮らしやすい積水ハウスの分譲地≫
「利便性」「安全性」「将来性」の観点から、独自の審査基準をクリアした土地のみを仕入れています。
その上で、美しい家々と緑、外構が調和したまちなみをデザインしていくので、
積水ハウスの分譲地はすてきなわが家を建てるのに最適、おすすめの土地なのです。
家づくりのはじまりを、積水ハウスと土地を選ぶところからスタートさせてみませんか。
現地ご案内【予約受付中】
「どんな間取りの家が建てられるのかな」
「周りの雰囲気はどうなんだろう、ちかくにはどんな施設があるの?」
「実際見える景色や、日当たりはどうかな」
実際に現地をご案内しながら、分譲地の魅力、特徴そして、積水ハウスのまちづくりの姿勢についてご説明いたします。
WEB、またはお電話にてご予約ください。
■お電話でのご予約は、通話料無料電話:0120-44-1133
■WEBでのご予約について、
詳しくはこちら
現地写真・参考プラン
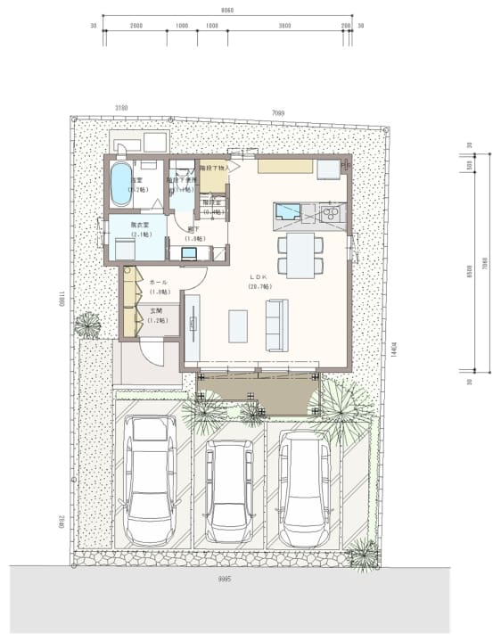
1号地
間口9.99mとゆとりがあるので並列の駐車場計画も可能。敷地全体に高低差がなく、自由度の高いプランニングができます。
2号地
前面道路は広くありませんが間口が12mとゆとりがあり、車の出入りには十分な余裕があります。
1号地参考プラン
この参考プランは、当社が紹介するプランの一例であり、このプランを義務付けるものではありません。お客様のご要望に合わせたプランをご提案させていただきます。
土地価格3490万円/建物参考価格(建物本体工事+消費税込)3300万円/敷地面積147.89㎡(44.73坪)/延床面積110.05㎡(33.29坪)
プラン中の家具家電、小物、車輌等は参考価格に含まれません。このプランの場合、外構工事費用・屋外給排水工事費用・地盤改良工事費用などで約600万円が別途必要です。参考プランをもとに描き起こしたパースです。
区画情報

※2号地には道路後退面積(セットバックを要する部分)も含まれます。道路後退面積/2.11㎡
- 号地
- 1
- 土地面積
- 147.89 ㎡(約44.73坪)
- 土地価格
- 3490万円
- 号地
- 2
- 土地面積
- 180.04 ㎡(約54.46坪)
- 土地価格
- 3790万円
アクセス/周辺マップ
お問い合わせ
<お問合わせ先>
積水ハウス株式会社 大分支店定休日:火曜日、水曜日及び祝日 営業時間:9:00~18:00
TEL:097-545-1700 【通話料無料電話:0120-44-1133】
<広告主(事務所)>
積水ハウス株式会社 大分支店大分市花園2丁目9番9号
定休日:火曜・水曜及び祝日 営業時間:9:00~18:00
TEL:097-545-1700






