コモアしおつ
山梨県上野原市コモアしおつ3丁目448番20(3-41-4)他

暮らしの中に森がある街《コモアしおつ》。思わず深呼吸をしたくなるような、都会では得難い心地よい住環境が広がっています。
現地案内会
◇ご来場予約お待ちしております◇
「どんな間取りが建てられるの?」
「一般土地と分譲地の違いは?」
お土地探しの悩みを、住まいの目線を含めてサポートします!
(短時間・オンラインでのご相談も大歓迎です)
≪見学コース例≫
■現地見学(約15分)・・・周辺環境・建物価格目安・計画等のご説明
※現地を既にご見学いただいている場合、お近くのモデルハウスや展示場でも◎
■マイホーム計画についてのご相談(約20分)
■建物の構造や保証に関するご相談(約20分)
■資金計画、税金、金利などお金に関するご相談(約20分)
相談内容や時間に関するご希望がありましたら備考欄にご記入ください。
お客様の希望する内容に沿ってご相談させていただきます。
区画情報
販売区画図

総区画数1413区画の大規模分譲地、全区画ゆとりある敷地面積です。
複数台の駐車スペースや広いお庭など、ご家族のライフスタイルに合わせた多様なプランをご検討いただけます。
- 号地
- 1-5-1
- 土地面積
- 255.55 ㎡(約77.30坪)
- 土地価格
- 363.5万円
- 号地
- 1-37-2
- 土地面積
- 251.17 ㎡(約75.97坪)
- 土地価格
- 472.7万円
- 号地
- 3-6-11
- 土地面積
- 224.27 ㎡(約67.84坪)
- 土地価格
- 470.4万円
- 号地
- 3-41-4
- 土地面積
- 205.76 ㎡(約62.24坪)
- 土地価格
- 410.4万円
- 号地
- 3-41-8
- 土地面積
- 219.09 ㎡(約66.27坪)
- 土地価格
- 433.2万円
現地写真/参考プラン
総区画数1413区画のビッグタウン
【3-41-8/約66.27坪】2024年11月撮影
コモアしおつ分譲地内にある時計の公園まで徒歩7分。緑を身近に感じる環境が整っています。
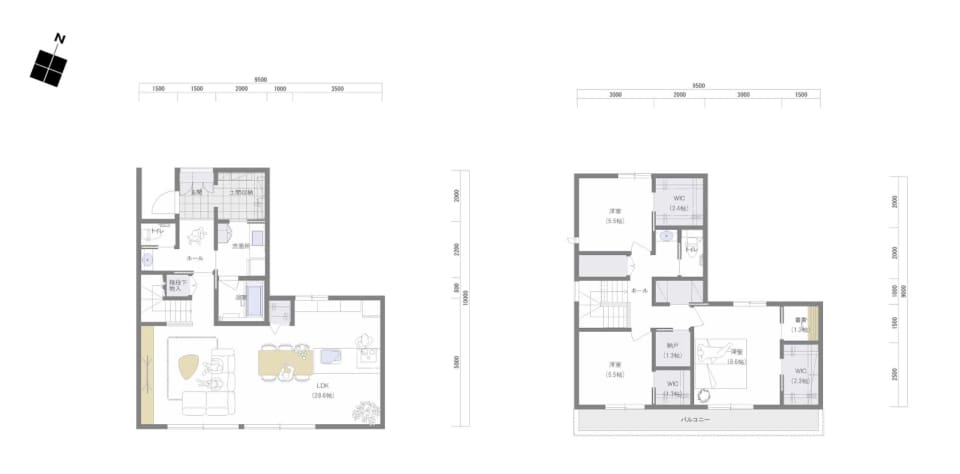
3-6-11 参考プラン
【3-6-11参考プラン/外観パース】
土地価格/470.4万円、敷地面積/224.27㎡(約67.84坪)。床面積/1階69.50㎡・2階63.00㎡、延床面積/132.50㎡(約40.08坪)。
※木造住宅「シャーウッド」
※参考プランは、当社が紹介するプランの一例です。このプランを義務付けるものではございません。
※お客様のご要望に合わせたプランをご提案させていただきます。
※プラン中の家具家電・車両などは参考価格に含まれません。また、植栽は成長した2年後のイメージです。
コモアしおつ インタビュー動画
アクセス/周辺マップ
路線図
最寄りのJR中央本線「四方津」駅へ、コモアブリッジ利用でスムーズにアクセス。
「八王子」駅へ直通29分、「新宿」駅へ直通73分、乗り換え不要で通勤も快適です。
地図
豊かな緑に囲まれた「コモアしおつ」の街の中には、お住まいの方々が快適に暮らすための施設が揃います。
利便に恵まれながらも、都会の喧噪から離れゆったりと寛げる住環境です。
お問い合わせ
<お問合わせ先>
積水ハウス株式会社 東京営業本部定休日:火曜日・水曜日・祝日 営業時間:9:00~18:00 ※当会場では、購入のお申し込みは受け付けておりません。
TEL:0120-776-511
There’re staffs who speak English and Chinese.
Tell the staff ’I want to consult in ENG/Chinese’, your name and phone number.
<広告主(事務所)>
積水ハウス株式会社 多摩支店東京都立川市曙町2-37-7 コアシティ立川1F
定休日:火曜日・水曜日・祝日 営業時間:9:00~18:00
TEL:042-540-8011













