コモンステージ武蔵境
東京都武蔵野市境南町1丁目146番37

落ち着いた暮らしを享受しながらも、気軽に都心へアプローチ。おうち時間もアクティブライフも満喫できる住まいを、積水ハウスで叶えませんか。
現地案内会
◇ご来場予約お待ちしております◇
「どんな間取りが建てられるの?」
「一般土地と分譲地の違いは?」
お土地探しの悩みを、住まいの目線を含めてサポートします!
(短時間・オンラインでのご相談も大歓迎です)
≪見学コース例≫
■現地見学(約15分)・・・周辺環境・建物価格目安・計画等のご説明
※現地を既にご見学いただいている場合、お近くのモデルハウスや展示場でも◎
■マイホーム計画についてのご相談(約20分)
■建物の構造や保証に関するご相談(約20分)
■資金計画、税金、金利などお金に関するご相談(約20分)
相談内容や時間に関するご希望がありましたら備考欄にご記入ください。
お客様の希望する内容に沿ってご相談させていただきます。
区画情報
区画図

緑の風景に癒される穏やかな住宅街に位置しています。
分譲地東側は自転車歩行者道、南側は歩道が整備されているため、お子様やご高齢の方も安全に歩行できます。
- 号地
- No.6
- 土地面積
- 133.56 ㎡(約40.40坪)
- 土地価格
- 8570万円
現地写真
◆穏やかな住宅街◆
第一種低層住居専用地域に位置する分譲地。分譲地南側は、潤い溢れる並木が美しい境南通りに面しています。風情ある緑のトンネルが日常の景色になる、心安らぐ住環境です。/2024年7月撮影※契約済区画含む
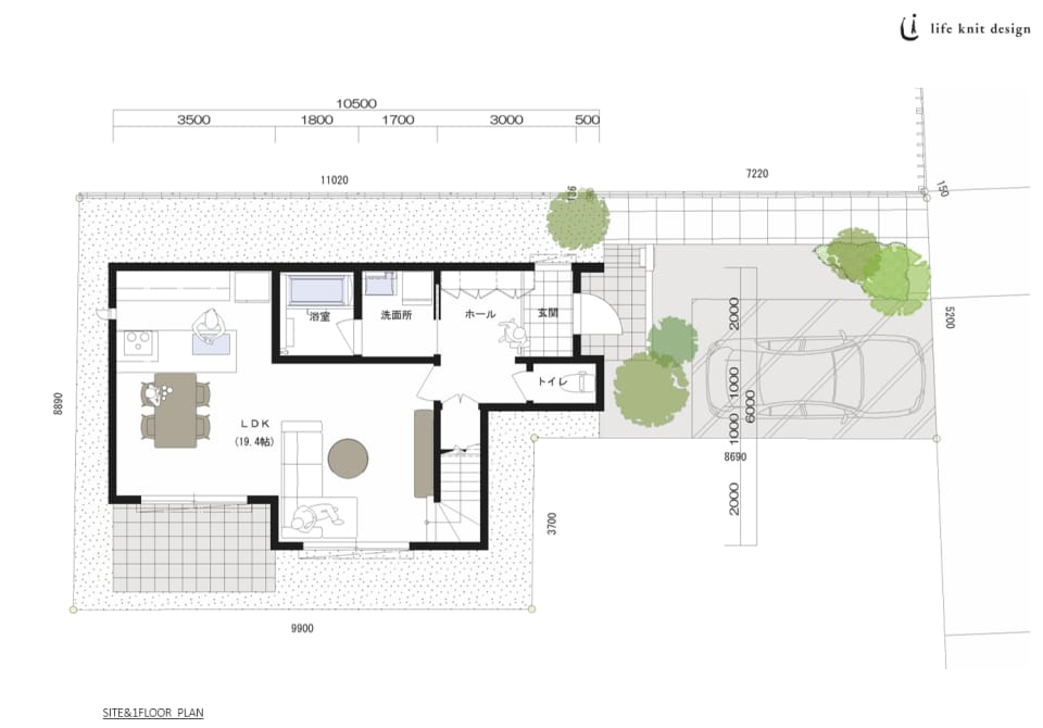
◆No.6参考プラン◆
【No.6参考プラン/外観パース】
土地価格/8570万円、敷地面積/133.56㎡(約40.40坪)。床面積/1階51.75㎡・2階50.75㎡、延床面積/102.50㎡(約31.00坪)。
※木造住宅「シャーウッド」
※この参考プランは、当社が紹介するプランの一例です。このプランを義務づけるものではございません。
※お客様のご要望に合わせたプランをご提案させていただきます。
※プラン中の家具家電・車などは、参考価格に含まれません。また、植栽は成長した2年後のイメージです。
アクセス/周辺マップ
交通アクセス図
JR中央線・西武多摩川線の2路線が利用できる「武蔵境」駅へ徒歩8分。
「新宿」駅へ22分、「東京」駅へ36分と、都心へ快適にアクセスできます。
現地案内図
マタニティ育児相談室を設けている、イトーヨーカドー 武蔵境店へ徒歩6分。子育て世帯を心強くサポートします。
駅や教育施設、病院など、暮らしに必要な場所へ歩いて行くことができる住みよい街です。
お問い合わせ
<お問合わせ先>
積水ハウス株式会社 東京営業本部定休日:火曜日、水曜日、祝日 営業時間:9:00~18:00 ※当会場では、購入のお申し込みは受け付けておりません。
TEL:0120-776-511
There’re staffs who speak English and Chinese.
Tell the staff ’I want to consult in ENG/Chinese’, your name and phone number.
<広告主(事務所)>
積水ハウス株式会社 多摩支店東京都立川市曙町2-37-7 コアシティ立川1F
定休日:火曜日、水曜日、祝日 営業時間:9:00~18:00
TEL:042-540-8011






