セントラルアベニュー荒川本郷 3期
茨城県稲敷郡 阿見町大字荒川本郷1935番170他
ご予約受付中!
■現地案内について
「どんな間取りが建てられるの?」
「どんな土地で周りはどんな施設があるの?」
「他にもいい土地ないかな…」などお家づくりの悩みを、住まいのプロが丁寧にサポートし
ます!
お客様の知りたい内容に合わせて案内を実施しております!
相談内容や時間に関するご希望がございましたら、備考欄にご記入ください。
(短時間・オンラインでのご相談も大歓迎です!)
■事前予約が必須になります。
【ご案内コースの例】
・セントラルアベニュー荒川本郷分譲地案内(30 分~)
・周辺環境のご案内(30 分~)
・資金計画・間取りのご相談(30 分~)
・積水ハウスの特長のお話(30 分~)
■資料請求について
お気軽にお問い合わせください!
(カタログのご請求だけでも承ります♪)
スタッフ一同でお家づくりをお手伝いいたします!
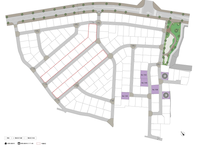
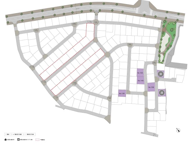
区画・価格
260226.jpg)

- 号地
- 136
- 土地面積
- 196.08 ㎡(約59.31坪)
- 土地価格
- 1050万円
- 号地
- 149
- 土地面積
- 200.89 ㎡(約60.76坪)
- 土地価格
- 1210万円
- 号地
- 150
- 土地面積
- 199.26 ㎡(約60.27坪)
- 土地価格
- 1180万円
- 号地
- 158
- 土地面積
- 234.11 ㎡(約70.81坪)
- 土地価格
- 1370万円
現地写真
区画No.136前面道路・現地写真(2025年8月撮影)
アクセス/周辺マップ
65 636 679*31掲載のマップコードは現地への誘導のため記載しております。カーナビでのご来場の際にご利用ください。
※「マップコード」および「MAPCODE」は(株)デンソーの登録商標です。
TRAIN ACCES
交通アクセス(車)
広域図
現地案内図
お問い合わせ
<お問合わせ先>
積水ハウス株式会社 常葉つくば支店定休日:火曜日、水曜日及び祝日 営業時間:9:00~18:00
TEL:0120-565-781
<広告主(事務所)>
積水ハウス株式会社 常葉つくば支店千葉県流山市おおたかの森西1-2-3(アゼリアテラス9階)
定休日:火曜日、水曜日及び祝日 営業時間:9:00~18:00
TEL:04-7152-4611



