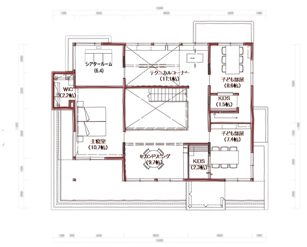
間取りプラン
住宅展示場詳細
- 所在地
- 〒441-8077 愛知県豊橋市神野新田町字中島9(中京テレビハウジング豊橋南内)
- 電話番号
- 0532-48-7555
- 受付時間
- 10:00〜18:00
- 定休日
- 火曜日・水曜日 ※事前予約にて火・水曜日もご見学いただけます
- 担当
- 豊橋支店
- 商品名
- グラヴィス ステージ
- 構造
- 木造2階
- 設備・仕様
-
- 無垢材・自然素材
- 空間
-
- 吹き抜け
- ホームシアター・音楽室
- 大空間リビング
- 家事コーナー
- 面積
-
- 134.75m²
- 114.08m²
- 延床面積
- 248.83m²
施設のユニバーサルデザイン
- 駐車場(車いす用・一般)
- 車いす専用あり(施設共用部分)
- 車いす対応トイレ
- あり(施設共用部分)
- オストメイト対応トイレ
- あり(施設共用部分)
- 車いすでの見学範囲
- 1階のみ
- 聴覚障がい者向け筆談対応
- あり
- 聴覚障がい者向けUDトーク
- あり
- 授乳室
- あり(施設共用部分)
- おむつ替えスペース
- あり(施設共用部分)
- キッズスペース
- あり
展示場スタッフより
注文住宅の積水ハウスでは邸別自由設計。鉄骨、木造、平屋建てと多彩な商品をラインナップ。積水ハウスの展示場で「自分らしい暮らし」のイメージを体感しませんか?
2階建てのモデルハウスは、内と外が自然につながることで、木のぬくもりを屋内外で感じられる上質な空間を提供します。
WEBにてご予約の上、展示場へご来場いただくと5000円分のクオカード&数量限定オリジナル大人の図鑑シールをプレゼント!
皆様のご来場をスタッフ一同、心よりお待ちいたしております。
スタッフ紹介
近隣の住宅展示場・ショールーム・モデルハウス
最近見た住宅展示場・ショールーム・モデルハウス
シャーウッド豊橋南展示場で開催予定のイベント
愛知県のイベント情報一覧あなたの条件に合う新着イベント情報をお届け!
「当日予定があってどうしても都合が合わない!」「住まいづくりのイベント情報をもっと知りたい!」という方のために、ご登録いただいた条件に合った新着イベント情報をメールでお知らせいたします。
ご登録はこちら
