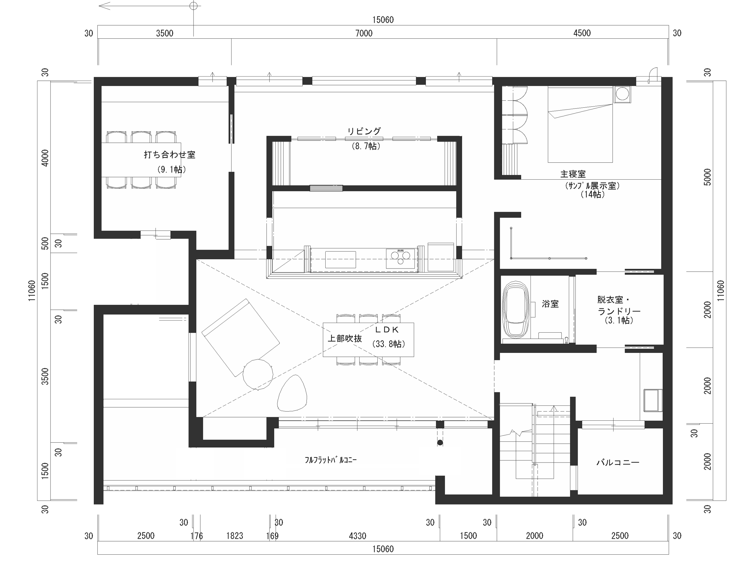
間取りプラン
住宅展示場詳細
- 所在地
- 〒329-2752 栃木県那須塩原市三島1-39-1(CRTハウジング那須塩原総合展示場内)
- 電話番号
- 0287-37-5651
- 受付時間
- 10:00〜18:00
- 定休日
- 火・水曜日※臨時休業あり。お問い合わせください。
- 担当
- 宇都宮支店
- 商品名
- イズ
- 構造
- 鉄骨2階
- 設備・仕様
-
- エコ設備
- 共働き
- 空気環境配慮仕様
- 収納充実
- 無垢材・自然素材
- 空間
-
- 吹き抜け
- オープンキッチン
- 大空間リビング
- 在宅コーナー
- 家事コーナー
- 面積
-
- 1階
- 132.56m²
- 2階
- 135.56m²
- 延床面積
- 268.12m²
施設のユニバーサルデザイン
- 駐車場(車いす用・一般)
- 車いす専用あり(施設共用部分)
- 車いす対応トイレ
- あり(施設共用部分)
- 車いすでの見学範囲
- 1階のみ
- 聴覚障がい者向け筆談対応
- あり
- 聴覚障がい者向けUDトーク
- あり
- ベビーベッド
- あり(施設共用部分)
- 授乳室
- あり(施設共用部分)
- おむつ替えスペース
- あり(施設共用部分)
- キッズスペース
- あり
展示場スタッフより
積水ハウス イズ那須塩原展示場のHPをご覧いただきありがとうございます。
当展示場は、一階は、お客様の感性をつむぎ、家という形にしていくための場所「life knit atelier」、二階は、「平屋住宅」を体感していただけるワンフロア型の展示場で構成されたモデルハウスです。
宇都宮エリア・大田原エリアの分譲地情報についても、お気軽にお尋ねください。
スタッフ一同心よりお待ちしております。
スタッフ紹介
近隣の住宅展示場・ショールーム・モデルハウス
イズ那須塩原展示場で開催予定のイベント
栃木県のイベント情報一覧あなたの条件に合う新着イベント情報をお届け!
「当日予定があってどうしても都合が合わない!」「住まいづくりのイベント情報をもっと知りたい!」という方のために、ご登録いただいた条件に合った新着イベント情報をメールでお知らせいたします。
ご登録はこちら
