コモンステージ瀬田大江Ⅲ分譲住宅
滋賀県大津市大江6丁目字水浦306番56他

室内外がフラットに繋がる20帖超のLDKで、伸びやかに過ごす毎日。いつもご家族を身近に感じられる、温かな住まいです。
◇ご来場予約お待ちしております◇
「どんな暮らしができるの?」
「間取りや動線、実際どうなんだろう?」
「収納やキッチンなど、写真だけじゃわからない・・・」
「周辺の生活環境も気になる!」そんな悩みや疑問を、住まいのプロがサポートします!
■案内員が常駐しておりませんので、見学の際は事前にお問い合わせいただけますと幸いです。
■ご案内は平日・土日祝どちらも可能です。
◇ご来場いただいた際のご相談事例と所要時間例◇
お客様のご要望に合わせて柔軟にご案内いたします!
(短時間・オンラインでのご相談も大歓迎です)
≪見学コース例≫
■建物見学(約20分)・・・間取り・設備・仕様などのご案内
■はじめての住宅購入ご相談(約30分)
■建物の構造・保証・アフターサービスのご相談(約30分)
■資金・住宅ローン・税制などのお金に関するご相談(約30分)
■周辺環境や生活利便施設のご紹介(約15分)
相談内容や時間に関するご希望がありましたら備考欄にご記入ください。
お客様の希望する内容に沿ってご相談させていただきます♪
◆積水ハウス滋賀支店◆
プラン
【1号地】内と外の繋がりを感じてのびのびと暮らせる住まい
【1号地/外観】
軽量鉄骨住宅「IS」。オリジナル構法「ダイナミックフレーム・システム」で開放的な空間づくりを実現。独自の制震構造「シーカス」がより高い安全性を確保します。/2025年6月撮影
■敷地面積/154.54㎡(約46.74坪)
■延床面積/118.24㎡(約35.76坪)
●1階床面積/60.99㎡
●2階床面積/57.25㎡
※平面図・写真に掲載の家具や備品などは、販売価格に含まれません。
【8号地】共働き・子育て世帯に嬉しい整理整頓しやすい住まい
【8号地/外観】
木造住宅「シャーウッド」、オリジナル外壁材「ベルバーン」を採用。自然素材の温もりを楽しむ木の住まいです。/2025年6月撮影
■敷地面積/145.59㎡(約44.04坪)
■延床面積/108.00㎡(約32.67坪)
●1階床面積/57.75㎡
●2階床面積/50.25㎡
※平面図・写真に掲載の家具や備品などは、販売価格に含まれません。
【16号地】南北に視線が抜ける開放感あふれる住まい
【16号地/外観】
美しく強靭な積水ハウスのオリジナル外壁材「ダインコンクリート」に包まれた軽量鉄骨住宅。おうち時間を彩るプライベートなお庭を採用した、3LDKの住まいです。/2024年11月撮影
■敷地面積/145.60㎡(約44.04坪)
■延床面積/114.22㎡(約34.55坪)
●1階床面積/54.96㎡
●2階床面積/59.26㎡
※平面図・パース・写真に掲載の家具や備品などは、販売価格に含まれません。
※平面図に掲載の植栽は成長後のイメージに近い画像を用いていますが、販売時は苗木や緑量の少ない状態です。育成には数年を要するものもあり、成長後の形状も様々です。
【24号地】ご家族と繋がりながら自分時間も大切にできる住まい
【24号地/外観】
木造住宅「シャーウッド」。ご家族のお好きなもので空間をコーディネートし、住まいのあらゆる場所に愛着が芽生えていく暮らしを、ここからはじめませんか。/2025年6月撮影
■敷地面積/162.47㎡(約49.14坪)
■延床面積/115.87㎡(約35.05坪)
●1階床面積/58.50㎡
●2階床面積/57.37㎡
※平面図・写真に掲載の家具や備品などは、販売価格に含まれません。
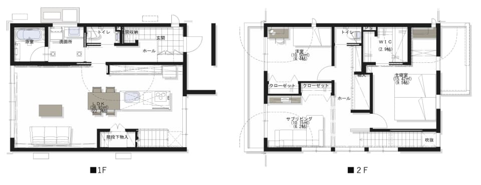
【25号地】多用途に活用できるサブリビングのある住まい
【25号地/外観】
土間収納・WICを備えた、2LDKの木造住宅。2階のサブリビングは、将来的に間仕切りをして3LDKに変更できます。/2025年6月撮影
■敷地面積/162.49㎡(約49.15坪)
■延床面積/116.07㎡(約35.11坪)
●1階床面積/58.50㎡
●2階床面積/57.57㎡
※平面図・写真に掲載の家具や備品などは、販売価格に含まれません。
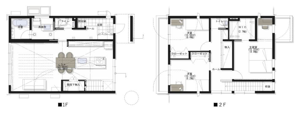
【26号地】モダンな佇まいが印象的な住まい
【26号地/外観】
建物を引き立て、街並みに馴染む景観を作り出す植栽を施しています。通りかかる人の目を楽しませるだけでなく、住まう人も緑の潤いを享受できます。/2025年6月撮影
■敷地面積/162.48㎡(約49.15坪)
■延床面積/116.00㎡(約35.09坪)
●1階床面積/57.50㎡
●2階床面積/58.50㎡
※平面図・写真に掲載の家具や備品などは、販売価格に含まれません。
区画情報
区画図

44坪超の敷地に建つ、個性豊かな6邸を販売中。
25号地・26号地の向かい側には公園があり、小さなお子様がいるご家庭にも嬉しい環境です。
- 号地
- 16
- 土地面積
- 145.60 ㎡(約44.04坪)
- 建物面積
- 114.22 ㎡(約34.55坪)
- 土地建物価格(税込)
- 6988万円
- 号地
- 1
- 土地面積
- 154.54 ㎡(約46.74坪)
- 建物面積
- 118.24 ㎡(約35.76坪)
- 土地建物価格(税込)
- 6999.8万円
- 号地
- 8
- 土地面積
- 145.59 ㎡(約44.04坪)
- 建物面積
- 108.00 ㎡(約32.67坪)
- 土地建物価格(税込)
- 6999.8万円
- 号地
- 24
- 土地面積
- 162.47 ㎡(約49.14坪)
- 建物面積
- 115.87 ㎡(約35.05坪)
- 土地建物価格(税込)
- 6999.8万円
- 号地
- 25
- 土地面積
- 162.49 ㎡(約49.15坪)
- 建物面積
- 116.07 ㎡(約35.11坪)
- 土地建物価格(税込)
- 6999.8万円
- 号地
- 26
- 土地面積
- 162.48 ㎡(約49.15坪)
- 建物面積
- 116.00 ㎡(約35.09坪)
- 土地建物価格(税込)
- 6999.8万円
アクセス/周辺マップ
交通アクセス
JR琵琶湖線「瀬田」駅から「京都」駅へ、快速利用時・乗換なしで乗車21分(日中平常時17分)。
通勤・通学はもちろん、休日のお出かけ範囲も広がりそうです。
※2024年10月時点
現地案内図
送迎や通学の負担が少ない距離に保育園・小中学校が揃うため、親子時間にゆとりが生まれます。
小児科の入るクリニックステーション瀬田大江へ徒歩12~13分。
安心して子育てできる環境が整っています。
お問い合わせ
<お問合わせ先>
積水ハウス株式会社 滋賀支店定休日:火曜日、水曜日及び祝日 営業時間:9:00~18:00
TEL:077-565-1001
<広告主(事務所)>
積水ハウス株式会社 滋賀支店草津市渋川1丁目3番4号 近江伊吹館1階
定休日:火曜日、水曜日及び祝日 営業時間:9:00~18:00
TEL:077-565-1001




























