コモンステージ西湘小田原【建売】
神奈川県小田原市南鴨宮3丁目46番13・45

3つのつながりが重なる、駅近で叶う暮らし
都心や各地につながる優れたアクセス性と、自然に囲まれた心地よさが、
日々の生活を豊かに感じさせてくれる小田原南鴨宮のまち。
住まいには、一人ひとりがリラックスできるイドコロと、
家事をみんなで楽しめるプランの工夫が詰まっています。
ここは、家族が思い描く、理想の未来を叶える家。
コモンステージ西湘小田原で、新しい暮らしをはじめませんか?
![]() Access 現地から徒歩約3分(最長)の「鴨宮」駅は、 「小田原」駅まで1駅。 新幹線も利用できる主要駅へ簡単にアクセスできます。 都心への通勤通学も、遠方への家族のお出かけも。 各地とつながる交通利便性が、 新しい暮らしを便利に楽しく彩ります。 |
![]() Life 箱根や熱海、御殿場など、人気のレジャースポットへのアクセスも近く、せっかくのお休みに、長時間の移動で悩まされることがありません。日々の疲れから解放されて、家族の特別なひとときを満喫できます。 |
![]() Nature 日常の中に豊かな自然が溶け込む南鴨宮。 海も、山も、公園も。 五感を癒す心地よい環境が揃っています。 四季の移ろいやその日の気分に合わせて、 いつもと違う道を歩いてみたり。 お日さまの香りに誘われて、ピクニックに出かけてみたり。 小田原ならではの心整う毎日がここに。 あなたなら、どんな時間を過ごしますか? |
ルームツアー 公開中!
室内をよりリアルに感じていただけるよう、ルームツアー動画をご用意しました。写真では伝わりにくい明るさや開放感、各部屋のつながり、暮らしやすい動線などを、動画ならではの臨場感でご覧いただけます。ご見学前に雰囲気を知りたい方や、家具配置・生活イメージを膨らませたい方にもおすすめです。ぜひ動画を通して、“ここでの暮らし”をご体感ください。 詳しくはこちら
現地見学会開催中!住まいづくりの不安をプロが解決
家づくりの疑問や不安、こんなことで悩んでいませんか?
「土地の選び方は?」「周辺環境は?」
そんな疑問に、住まいづくりのプロがわかりやすくお答えします。
土地選びから間取り相談、資金計画まで、なんでもご相談ください。
現地見学会は事前予約制で、平日・土日どちらも対応可能。
WEB会議を利用したオンライン相談も可能です!
まずは、お気軽にお問合せ・お申込くださいませ。
◇ご来場頂いた際のご相談事例と所要時間◇
■当分譲地について詳しく知りたい(約15分)…周辺環境・建物規模・土地概要のご説明
■はじめてのマイホーム計画についてのご相談(約30分)
■積水ハウスの住宅について詳しく知りたい(約30分)…建物の構造や保証に関するご説明
■家づくりの資金計画について詳しく知りたい(約30分)…資金計画、税金、金利などお金に関するご相談
詳しくはこちら
区画情報

- 号地
- A棟
- 土地面積
- 88.51 ㎡(約26.77坪)
- 建物面積
- 127.00 ㎡(約38.41坪)
- 土地建物価格(税込)
- 7990万円
- 号地
- B棟
- 土地面積
- 93.50 ㎡(約28.28坪)
- 建物面積
- 135.50 ㎡(約40.98坪)
- 土地建物価格(税込)
- 8350万円
アクセス/現地ご案内図
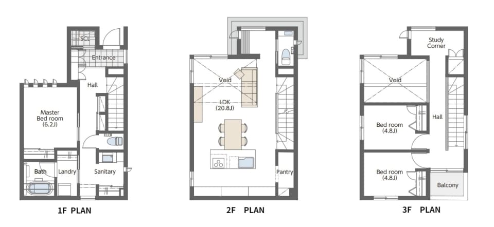
間取りのご紹介
A棟・B棟 プラン 2025年9月撮影
A棟 79,900,000円(消費税込み)
1F サニタリースペース、ランドリースペースをそれぞれ分けてプランニングしています。ランドリースペースには「乾太くん」も完備しており、天気や時間を気にせずお洗濯ができます。
2F LDKはリビング上に吹き抜けを作り明るさと開放感が感じられます。ダイニングとリビングは床暖房を設置しています。アクセントタイルや木質天井などでリラックスできるリビングになっております。
3F ベッドルーム2部屋はそれぞれエアコン付きです。また、家族で共有できるスタディコーナーには物入付で書斎以外にも家事室や納戸としても利用できる便利なスペースです。
B棟 83,500,000円(消費税込み)
1F サニタリースペース、ランドリースペースをそれぞれ分けてプランニングしています。ランドリースペースには「乾太くん」も完備しており、天気や時間を気にせずお洗濯ができます。
2F ダイニングからリビングにかけて木質天井をはり、おしゃれな空間になっています。ダイニングとリビングは床暖房を設置しています。
3階 ベッドルーム2部屋はそれぞれ折り上げ天井となっており、空間に彩りを与えてくれています。また、それぞれのお部屋はエアコン付きです。
コモンステージ西湘小田原:ルームツアー(分譲住宅)
お問い合わせ
<お問合わせ先>
積水ハウス株式会社 湘南支店定休日:火曜日、水曜日及び祝日 営業時間:9:00~18:00
TEL:0120-91-7263
なかなかいい土地が見つからない方は是非湘南支店にご相談ください! お客様の希望に応える土地に、ご家族皆様が満足のお住まいをご提案いたします。
<広告主(事務所)>
積水ハウス株式会社 湘南支店神奈川県藤沢市辻堂神台2-2-1アイクロス湘南9F
定休日:火曜日、水曜日及び祝日 営業時間:9:00~18:00
TEL:0466-34-2311















