コモンステージ荻窪
東京都杉並区南荻窪3丁目219番8、219番7(地番)

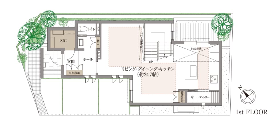
24帖超の大空間LDK。リビング内階段や吹抜など、ご家族皆様が思い思いに過ごしながらも、繋がりを感じられる住まいです。
プラン
◆24帖超のLDK◆
【No.1/外観パース】落ち着いた街並みが広がる、第一種低層住居専用地域に位置しています。積水ハウスの木造住宅「シャーウッド」。石積み・植栽など、自然素材の温もりを楽しむ住まいです。
■敷地面積/110.46㎡(約33.41坪)
■延床面積/110.75㎡(約33.50坪)
※平面図・パースに掲載の家具・調度品・車輛は、販売価格に含まれておりません。
※掲載の外観完成予想イメージCGは図面を基に描き起こしたもので、実際とは異なる場合があります。
※周辺建物は省略しております。
※植栽は、竣工からの生育期間(約2年を想定)を経た枝ぶりや樹形を想定して描いております。
※特定の季節の状況を表現したものではありません。
区画情報
アクセス/周辺マップ
5 148 016*50掲載のマップコードは現地への誘導のため記載しております。カーナビでのご来場の際にご利用ください。
※「マップコード」および「MAPCODE」は(株)デンソーの登録商標です。
交通アクセス図
JR中央線・総武線、東京メトロ丸ノ内線 「荻窪」駅から、「新宿」駅へ11分、「東京」駅へ25分。
都内の主要エリアへのダイレクトアクセスが叶い、通勤・通学、お出かけがスムーズです。
現地案内図
「荻窪」駅・ルミネ荻窪・西友 荻窪店はそれぞれ連絡通路で繋がっており、行き来しやすいです。
図書館や日帰り温泉施設など、日常にちょっとしたスパイスを与えてくれる施設も身近に揃っています。
お問い合わせ
<お問合わせ先>
積水ハウス株式会社 東京営業本部定休日:火曜日、水曜日及び祝日 営業時間:9:00~18:00 ※当会場では、購入のお申込みは受け付けておりません。
TEL:0120-776-511
There are staffs who speak English and Chinese.
Tell the staff 「I want to consult in ENG/Chinese」, your name and phone number.
<広告主(事務所)>
積水ハウス株式会社 東京西支店東京都新宿区西新宿3-6-11 西新宿KSビル1F
定休日:火曜日、水曜日及び祝日 営業時間:9:00~18:00
TEL:03-5325-6800




