コモンステージ池田旭丘
大阪府池田市旭丘2丁目228番1他

「大阪梅田」駅へ直通可能。第一種低層住居専用地域の穏やかさと生活利便性、どちらも享受できる住環境。ご家族の笑顔あふれる暮らしがここに。
現地案内会【ご予約受付中】
★ご予約の上、ご来場いただいた方にはQUOカード2000円分プレゼント★
■現地にスタッフは常駐しておりませんので、ご見学の際は事前にお問い合わせください。
■平日・土日祝どちらでもご見学可能です。
※既に現地をご見学いただいている場合は、お近くの展示場やショールームにて、
周辺環境や間取りなどのご紹介も可能です。
■お客様のスケジュールに合わせてご案内いたします。
〇現地見学・・・周辺環境・建物価格目安などのご説明
〇お打合せや工期などスケジュールのご相談
〇構造や保証など、建物に関するご説明
〇住宅ローンや諸費用、税金など資金計画に関するご相談
※ご相談内容やお時間についてのご希望がございましたら、備考欄へご記入ください。
現地写真/参考プラン
◆落ち着いた住環境◆
第一種低層住居専用地域に佇む、全6区画の分譲地。ご家族のライフスタイルに合わせ、お好みの区画をお選びください。/2024年12月撮影
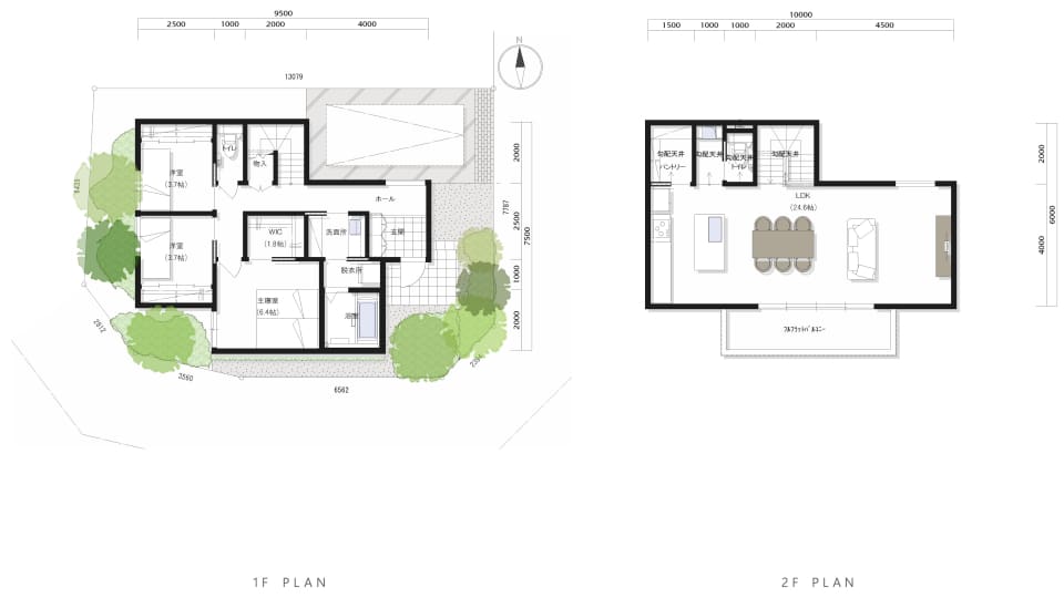
◆1号地参考プラン◆
【1号地参考プラン/外観パース】
土地価格/4030万円、敷地面積/120.00㎡(約36.30坪)。床面積/1階57.00㎡・2階59.25㎡、延床面積/116.25㎡(約35.16坪)。
■建物参考価格(建物本体価格・消費税込)/約4910万円
※このプランの場合、外構工事費用、建築確認費用などで、約500万円が必要です。
※参考プランは、当社が紹介するプランの一例です。このプランを義務づけるものではありません。
※プラン中の家具・車などは、建物参考価格には含まれておりません。
※外観パース・内観パースは参考プランを基に描き起こしたイメージパースです。
※平面図・パースに描かれている樹木は、成長した数年後のイメージです。
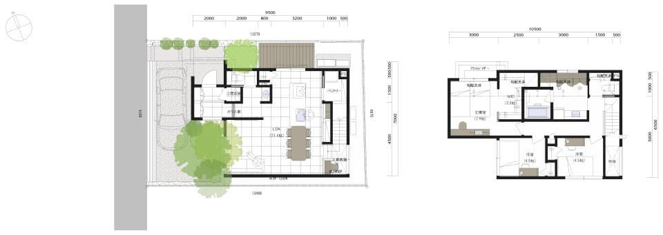
◆5号地参考プラン◆
【5号地参考プラン/外観パース】
土地価格/3490万円、敷地面積/120.00㎡(約36.30坪)。床面積/1階52.75㎡・2階55.50㎡、延床面積/108.25㎡(約32.74坪)。
■建物参考価格(建物本体価格・消費税込)/約5180万円
※このプランの場合、外構工事費用、建築確認費用などで、約350万円が必要です。
※参考プランは、当社が紹介するプランの一例です。このプランを義務づけるものではありません。
※プラン中の家具・車などは、建物参考価格には含まれておりません。
※外観パース・内観パースは参考プランを基に描き起こしたイメージパースです。
※平面図・パースに描かれている樹木は、成長した数年後のイメージです。
区画情報
アクセス/周辺マップ
1 848 149*45掲載のマップコードは現地への誘導のため記載しております。カーナビでのご来場の際にご利用ください。
※「マップコード」および「MAPCODE」は(株)デンソーの登録商標です。
交通アクセス図
「石橋阪大前」駅へは、バスや自転車利用で快適にアクセス可能。
「大阪梅田」駅や「大阪空港」駅へスムーズに繋がる機動力が、暮らしのフィールドをさらに広げます。
広域図
「石橋阪大前」駅西側には石橋商店街があり、雨の日も傘をささずにゆっくりとお買物を楽しめます。
教育施設や医療施設も身近に点在。将来を見据えて住み続けられる、暮らしやすい環境が魅力です。
現地案内図
第一種低層住居専用地域内、にぎやかな駅前から少し距離を置いた落ち着きのある住宅街。
徒歩5分圏内に生活利便施設が複数揃い、車がなくてもお買物やクリニックに行きやすいロケーションです。
お問い合わせ
<お問合わせ先>
積水ハウス株式会社 大阪北支店定休日:火曜日、水曜日及び祝日 営業時間:9:00~18:00
TEL:0120-43-0102
<広告主(事務所)>
積水ハウス株式会社 大阪北支店箕面市船場東1-10-33
定休日:火曜日、水曜日及び祝日 営業時間:9:00~18:00
TEL:072-726-2100









