コモンステージ安城住吉町五丁目
愛知県安城市住吉町5丁目19番地3

全1区画 175.59㎡(約53.11坪)。本の王国安城店まで徒歩3分。
特急停車駅である名鉄名古屋本線「新安城」駅まで徒歩15分。
名古屋・豊橋・豊田・碧南方面へのアクセスが良好な立地です。
現地案内会【ご予約受付中!】
◇ご来場予約お待ちしております◇
「どんな間取りで建てられるの?」・「どんな土地で、周りはどんな施設があるの?」
「ほかにもいい土地ないかな…」 など、住まいづくりの悩みを住まいのプロがサポートいたします!
■案内員は常駐しておりませんので、見学の際は事前にお問合せください。
■ご案内は平日・土日祝どちらも可能です。
≪見学コース例≫
■現地見学(約15分)・・・周辺環境、建物価格目安、計画等のご説明
※既に現地ご見学済みの場合、お近くのモデルハウスや展示場でもOK◎
■マイホーム計画についてのご相談(約30分)
■建物の構造や保証に関するご相談(約30分)
■資金計画、税金、金利などお金に関するご相談(約30分)
相談内容や所要時間に関するご希望がありましたら備考欄にご記入ください。
お客様の知りたい内容に合わせて案内を実施しております!
(短時間・オンラインでのご相談も大歓迎です)
お客様の夢の住まい実現に向けて、当社スタッフ一同でお手伝いいたします。
詳しくはこちら
参考プラン・現地写真
※A号地にて注文住宅を建てた場合の参考プランです。
※建売の販売ではありません。
※この参考プランは、当社が紹介するプランの一例です。このプランを義務付けるものではありません。
※プラン中の家具・車等は販売価格には含まれていません。
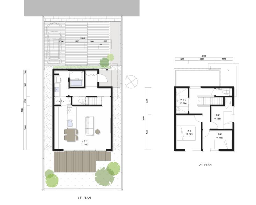
【参考プランA号地】 土地販売価格4,600万円
■敷地面積/175.59㎡(53.11坪)
【A号地】参考プラン例
■建物参考価格(建物本体価格+消費税)4,700万円
■延床面積/102.74 ㎡ (31.07坪)
■1階床面積/56.43 ㎡、2階床面積/46.31 ㎡
周辺状況を踏まえたプライバシーへの配慮と生活動線を確保しております。大空間LDKへは深い軒先から間接光を取り入れます。快適にお過ごし頂けるお客様に寄り添ったご提案をさせて頂きます。
【現地写真】撮影日:2026年1月(造成工事完了予定:2026年4月)
「お客様の理想の暮らしを一緒に見つけたい。」それが私たちの想いです。この土地でどんな家を建てたいか、どんなライフスタイルを叶えたい、ぜひ私たちにお聞かせください。
区画図

- 号地
- A号地
- 土地面積
- 175.59 ㎡(約53.11坪)
- 土地価格
- 4600万円
アクセス
お問い合わせ
<お問合わせ先>
積水ハウス株式会社 岡崎支店定休日:火曜日、水曜日及び祝日 営業時間:9:00~18:00
TEL:0120-39-6521
<広告主(事務所)>
積水ハウス株式会社 岡崎支店岡崎市唐沢町11-5 第一生命・三井住友海上岡崎ビル10階
定休日:火曜日、水曜日及び祝日 営業時間:9:00~18:00
TEL:0120-39-6521




