コモンステージ名東亀の井
愛知県名古屋市 名東区亀の井2丁目286番2他

◇ご来場予約お待ちしております
※現地を既にご見学いただいている場合、お近くのモデルハウスや展示場でも◎
「どんな間取りが建てれるの?」「どんな土地で、周りはどんな施設があるの?」
「ほかにもいい土地ないかな...」
お家づくりの悩みを、住まいのプロがサポートします!
■案内員が常駐しておりませんので、見学の際は事前にお問い合わせいただけますと幸いです。
■ご案内は平日・土日祝どちらも可能です。
◇ご来場いただいた際のご相談事例と所要時間
お客様の知りたい内容に合わせて案内を実施しております!
(短時間・オンラインでのご相談も大歓迎です)
≪見学コース例≫
■現地見学(約15分)
・・・周辺環境・建物価格目安・計画等のご説明
※現地を既にご見学いただいている場合、お近くのモデルハウスや展示場でも◎
■はじめてのマイホーム計画についてのご相談(約30分)
■建物の構造や保証に関するご相談(約30分)
■資金計画、税金、金利などお金に関するご相談(約30分)
相談内容や時間に関するご希望がありましたら備考欄にご記入ください。
お客様の希望する内容に沿ってご相談させていただきます♪
現地写真・参考プラン
現地写真
航空写真※2025年4月撮影
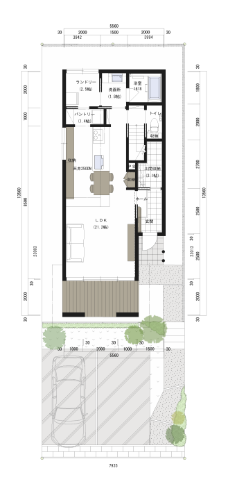
参考プラン
区画情報
アクセス/周辺マップ
30 570 070*60掲載のマップコードは現地への誘導のため記載しております。カーナビでのご来場の際にご利用ください。
※「マップコード」および「MAPCODE」は(株)デンソーの登録商標です。
現地案内図
お問い合わせ
<お問合わせ先>
積水ハウス株式会社 名古屋東支店 イズ長久手Ⅰ定休日:火曜日、水曜日 営業時間:9:00~18:00 ※当会場では、購入のお申込みは受け付けておりません。
TEL:0120-29-6439
<広告主(事務所)>
積水ハウス株式会社 名古屋東支店名古屋市中区栄3-18-1(ナディアパークビジネスセンタービル16F)
定休日:火曜日、水曜日及び祝日 営業時間:9:00~18:00
TEL:052-265-1211







