コモンステージ永平寺町松岡松ヶ原
福井県吉田郡 永平寺町松岡 松ケ原4丁目809番の一部

自然豊かな街並みが広がる《永平寺町》。緑深い山々と九頭竜川がもたらす清々しい空気に包まれる、心安らぐ暮らしがここに。
現地案内会
◇ご来場予約お待ちしております◇
「この間取り、あなたならどう使う?」想像が膨らむ建物プラン例をご覧ください!
ご来場いただいた方へ、ご要望に合わせてプランを作成させていただきます!
建物プランを見て「建てたい」と思ったら、次はぜひ現地へ!
■案内員が常駐しておりませんので、見学の際は事前にご予約いただけますと幸いです。
■ご案内平日・土日祝どちらも可能です。
◇ご来場いただいた際のご相談事例と所要時間例◇
お客様の知りたい内容に合わせて案内を実施しております!
(短時間・オンラインでのご相談も大歓迎です)
≪見学コース例≫
■現地見学(約15分)・・・周辺環境・建物価格目安・計画などのご説明
※現地を既にご見学いただいている場合、お近くのモデルハウスや展示場でも◎
■はじめてのマイホーム計画についてのご相談(約30分)
■建物の構造や保証に関するご相談(約30分)
■資金計画、税金、金利などお金に関するご相談(約30分)
相談内容や時間に関するご希望がありましたら備考欄にご記入ください。
担当:積水ハウス(株) 近畿西支店 福井オフィス
詳しくはこちら
区画情報
区画図

角地や整形地など、それぞれ魅力のある3区画を分譲中。
ゆとりある広さで、お庭や複数台のカースペースも検討可能です。積水ハウスの「邸別自由設計」で、街と調和する住まいをご提案します。
- 号地
- A
- 土地面積
- 185.89 ㎡(約56.23坪)
- 土地価格
- 799.8万円
- 号地
- B
- 土地面積
- 208.97 ㎡(約63.21坪)
- 土地価格
- 999.8万円
- 号地
- C
- 土地面積
- 234.96 ㎡(約71.07坪)
- 土地価格
- 999.8万円
参考プラン
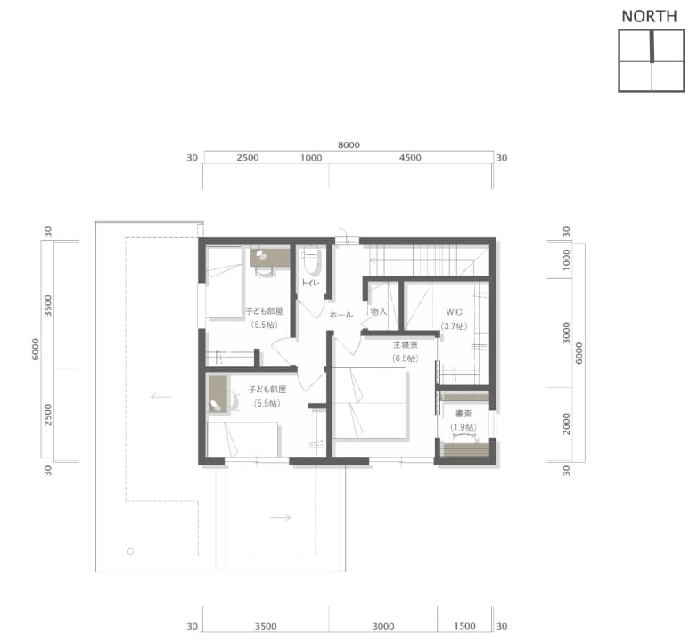
A号地参考プラン
【A号地参考プラン/外観パース】
土地価格/799万8000円、敷地面積/185.89㎡(約56.23坪)。床面積/1階65.61㎡、2階48.84㎡、延床面積/114.45㎡(約34.62坪)。
■土地価格/799万8000円
■敷地面積/185.89㎡(約56.23坪)
■建物参考価格(建物本体価格+消費税込)/約3,808万円
■1階床面積/65.61㎡、2階床面積48.84㎡、延床面積/114.45㎡(約34.62坪)
※このプランの場合、外構工事費用、地盤補強費用などで、約550万円が別途必要です。
※この参考プランは、当社が紹介するプランの一例です。このプランを義務づけるものではありません。
※パースは参考プランを基に描き起こしたイメージパースで、樹木は成長した数年後のイメージです。
※プラン内の家具・車などは、建物参考価格に含まれておりません。
周辺マップ
現地案内図
ドラッグストアへ徒歩8分の日々の買い物がスムーズな立地。
ラブリーパートナー Lpaへは車8分。休日はご家族と一緒に、買い物や映画を気軽に楽しめます。
お問い合わせ
<お問合わせ先>
積水ハウス株式会社 近畿西支店 福井オフィス定休日:火曜日、水曜日及び祝日 営業時間:9:00~18:00
TEL:0776-25-2828
<広告主(事務所)>
積水ハウス株式会社 近畿西支店 福井オフィス〒918-8239 福井県福井市成和2丁目1108番地
定休日:火曜日、水曜日及び祝日 営業時間:9:00~18:00
TEL:0776-25-2828




