コモンステージ武蔵村山大南【宅地】
東京都武蔵村山市大南1丁目145番11他

暮らしの軸となる施設が身近に揃う利便性と、豊かな自然が共存する街。バス停まで徒歩圏内、「立川」駅やイオンモールへバスでもアクセスできます。
現地案内会
◇ご来場予約お待ちしております◇
「どんな間取りが建てられるの?」
「一般土地と分譲地の違いは?」
お土地探しの悩みを、住まいの目線を含めてサポートします!
(短時間・オンラインでのご相談も大歓迎です)
≪見学コース例≫
■現地見学(約15分)・・・周辺環境・建物価格目安・計画等のご説明
※現地を既にご見学いただいている場合、お近くのモデルハウスや展示場でも◎
■マイホーム計画についてのご相談(約20分)
■建物の構造や保証に関するご相談(約20分)
■資金計画、税金、金利などお金に関するご相談(約20分)
相談内容や時間に関するご希望がありましたら備考欄にご記入ください。
お客様の希望する内容に沿ってご相談させていただきます。
現地写真/参考プラン
分譲地ぶらり旅 コモンステージ武蔵村山大南
緑豊かな地域
道路と敷地に高低差がほとんどなく、自転車での移動やベビーカーの利用もスムーズ。周囲には高い建物がなく日当たり良好です。※将来にわたり採光を保証するものではありません。/2024年9月撮影
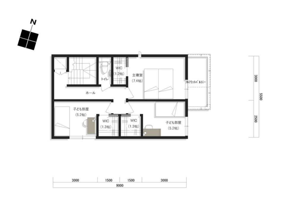
No.2参考プラン
【No.2参考プラン/外観パース】
土地価格/4250万円、敷地面積/186.15㎡(約56.31坪)。床面積/1階52.50㎡・2階49.50㎡、延床面積/102.00㎡(約30.85坪)。
※木造住宅「シャーウッド」
※参考プランは、当社が紹介するプランの一例です。このプランを義務付けるものではございません。
※お客様のご要望に合わせたプランをご提案させていただきます。
※プラン中の家具家電・車両などは参考価格に含まれません。また、植栽は成長した2年後のイメージです。
区画図
全体区画図

広大な開発エリアに寄り添うロケーション。分譲地内道路の幅員は約5.0m、車の通行もスムーズに行えます。
分譲地西側は、歩道が整備された都道に面しています。
- 号地
- No.1
- 土地面積
- 122.87 ㎡(約37.16坪)
- 土地価格
- 2960万円
- 号地
- No.2
- 土地面積
- 186.15 ㎡(約56.31坪)
- 土地価格
- 4250万円
- 号地
- No.6
- 土地面積
- 135.10 ㎡(約40.86坪)
- 土地価格
- 2890万円
- 号地
- No.11
- 土地面積
- 123.15 ㎡(約37.25坪)
- 土地価格
- 2770万円
- 号地
- No.13
- 土地面積
- 123.09 ㎡(約37.23坪)
- 土地価格
- 2720万円
現地MAP
路線図
西武拝島線「武蔵砂川」駅まで徒歩15~16分。「西武新宿」駅へ急行利用で46分のダイレクトアクセス。
隣駅の「玉川上水」駅から多摩モノレールを利用すると、立川方面への移動もスムーズです。
現地案内図
買い物・医療・教育施設が徒歩15分圏内に点在する、幅広い世代が暮らしやすい住環境です。
少し足をのばせば大型商業施設もあり、ショッピングを楽しめます。
お問い合わせ
<お問合わせ先>
積水ハウス株式会社 東京営業本部定休日:火曜日・水曜日・祝日 営業時間:9:00~18:00 ※当会場では、購入のお申し込みは受け付けておりません。
TEL:0120-776-511
There’re staffs who speak English and Chinese.
Tell the staff ’I want to consult in ENG/Chinese’, your name and phone number.
<広告主(事務所)>
積水ハウス株式会社 多摩支店東京都立川市曙町2-37-7 コアシティ立川1F
定休日:火曜日・水曜日・祝日 営業時間:9:00~18:00
TEL:042-540-8011









