コモンステージ井の頭二丁目
東京都三鷹市井の頭2丁目145番2

現地案内会【ご予約受付中】
◇ご来場予約お待ちしております◇
「どんな間取りが建てられるの?」
「一般土地と分譲地の違いは?」
「未公開土地とは?」お土地探しの悩みを、住まいの目線を含めてサポートします!
(短時間・オンラインでのご相談も大歓迎です)
≪見学コース例≫
■現地見学(約15分)・・・周辺環境・建物価格目安・計画等のご説明
※現地を既にご見学いただいている場合、お近くのモデルハウスや展示場でも◎
■マイホーム計画についてのご相談(約20分)
■建物の構造や保証に関するご相談(約20分)
■資金計画、税金、金利などお金に関するご相談(約20分)
相談内容や時間に関するご希望がありましたら備考欄にご記入ください。
お客様の希望する内容に沿ってご相談させていただきます。
アクセス/周辺マップ
交通アクセス(電車・バス)
京王井の頭線利用で「吉祥寺」駅まで乗車3分、都心部へのアクセスも便利で、「渋谷」駅まで25分、「新宿」駅まで26分と通勤や通学もスムーズです。
現地案内図
周辺には医療施設や公園が充実。子育てファミリーに嬉しい周辺環境です。
区画情報
全2区画の分譲地。北東側の道路幅員は7.0mと広々。敷地形状を活かしたプランをご提案致します。

- 号地
- No.1
- 土地面積
- 132.23 ㎡(約39.99坪)
- 土地価格
- 1億700万円
- 号地
- No.2
- 土地面積
- 164.24 ㎡(約49.68坪)
- 土地価格
- 9980万円
現地写真/参考プラン
撮影日:2025年11月
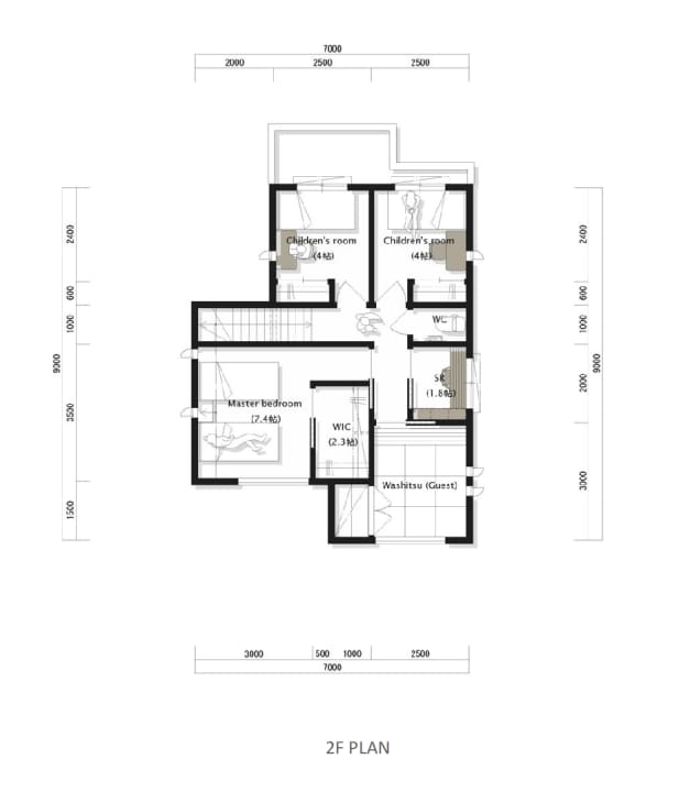
参考プラン例/No.1
建物参考価格(No.1区画)6,010万円(建物本体価格+消費税込)
延床面積:104.50㎡ (31.61坪)
■1F面積:52.75㎡
■2F面積:51.75㎡
※このプランの場合、外構工事費用、登記費用などで、約310万円が別途必要です。
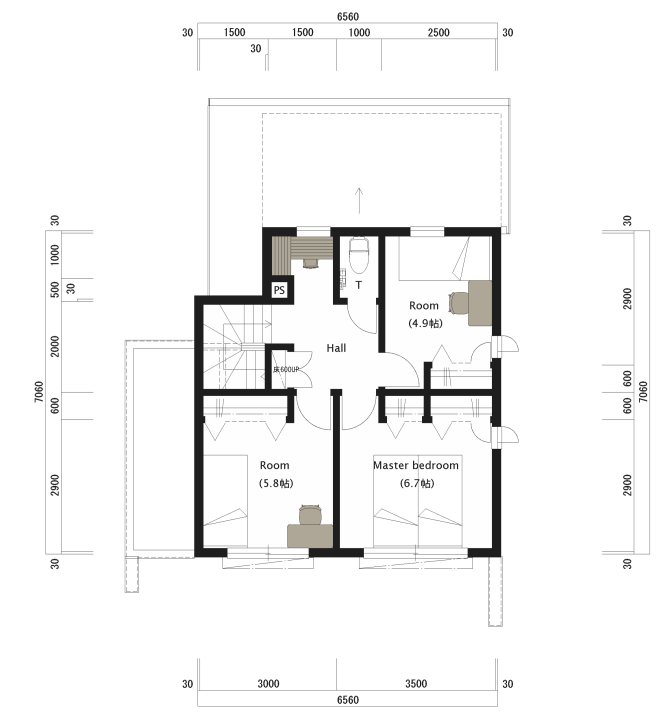
参考プラン例/No.2
建物参考価格(No.2区画)6,600万円(建物本体価格+消費税込)
延床面積:114.50㎡ (34.63坪)
■1F面積:65.00㎡
■2F面積:49.50㎡
お問い合わせ
<お問合わせ先>
積水ハウス株式会社 東京営業本部定休日:火曜・水曜・祝日 営業時間:9:00~18:00 ※当会場では、購入のお申し込みは受け付けておりません。
TEL:0120-776-511
There are staffs who speak English and Chinese.
Tell the staff 「I want to consult in ENG/Chinese」, your name and phone number.
<広告主(事務所)>
積水ハウス株式会社 東京北支店東京都豊島区西池袋1-11-1 メトロポリタンプラザビル11F
定休日:火曜・水曜・祝日 営業時間:9:00~18:00
TEL:03-3984-5261









