コモンステージ高井戸東
東京都杉並区高井戸東2丁目592番1他1筆

現地案内会【ご予約受付中】
◇ご来場予約お待ちしております◇
「どんな間取りが建てられるの?」
「一般土地と分譲地の違いは?」
「未公開土地とは?」お土地探しの悩みを、住まいの目線を含めてサポートします!
(短時間・オンラインでのご相談も大歓迎です)
≪見学コース例≫
■現地見学(約15分)・・・周辺環境・建物価格目安・計画等のご説明
※現地を既にご見学いただいている場合、お近くのモデルハウスや展示場でも◎
■マイホーム計画についてのご相談(約20分)
■建物の構造や保証に関するご相談(約20分)
■資金計画、税金、金利などお金に関するご相談(約20分)
相談内容や時間に関するご希望がありましたら備考欄にご記入ください。
お客様の希望する内容に沿ってご相談させていただきます。
アクセス/周辺マップ
5 059 289*78掲載のマップコードは現地への誘導のため記載しております。カーナビでのご来場の際にご利用ください。
※「マップコード」および「MAPCODE」は(株)デンソーの登録商標です。
5 059 289*78
交通アクセス(電車・バス)
京王井の頭線「高井戸」駅利用で「渋谷」駅まで乗車19分、「新宿」駅までは乗車20分のアクセスが可能。 通勤・通学や休日のお出かけも快適です。
現地案内図
周辺には教育施設や医療施設、公園があり、利便性と豊かな自然を兼ね備えた街です。
区画情報
高台に佇む二階建て中心の街並み。地形を活かして設計致します。

※No.2土地面積/138.24㎡(路地状部分42.53㎡(約30.77%)含む)
- 号地
- No.1
- 土地面積
- 130.65 ㎡(約39.52坪)
- 土地価格
- 1億1100万円
- 号地
- No.2
- 土地面積
- 138.24 ㎡(約41.81坪)
- 土地価格
- 8850万円
- 号地
- No.3
- 土地面積
- 119.76 ㎡(約36.22坪)
- 土地価格
- 9800万円
現地写真/参考プラン
東側に広がるグラウンドに面した立地。朝の陽光が心地よく差し込む開放的な住環境です。
撮影年月:2025年11月
参考プラン例/No.1
建物参考価格(No.1区画)5,940万円(建物本体価格+消費税込)
延床面積:103.25㎡ (31.23坪)
■1F面積:50.50㎡
■2F面積:52.75㎡
※このプランの場合、外構工事費用、登記費用などで、約310万円が別途必要です。
※駐車スペースを2台分確保した参考プランですが、プランや車種により2台分の確保が難しい場合がございます。
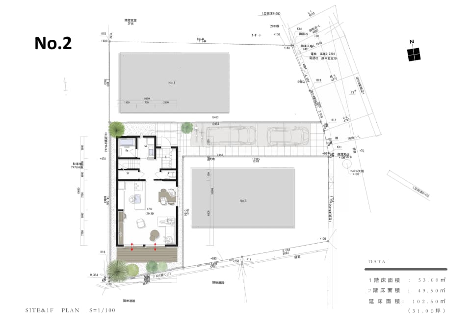
参考プラン例/No.2
建物参考価格(No.2区画)5,890万円(建物本体価格+消費税込)
延床面積:102.50㎡ (31.00坪)
■1F面積:53.00㎡
■2F面積:49.50㎡
※このプランの場合、外構工事費用、登記費用などで、約310万円が別途必要です。
※駐車スペースを2台分確保した参考プランですが、プランや車種により2台分の確保が難しい場合がございます。
参考プラン例/No.3
建物参考価格(No.3区画)5,490万円(建物本体価格+消費税込)
延床面積:95.50㎡ (28.88坪)
■1F面積:47.75㎡
■2F面積:47.75㎡
※このプランの場合、外構工事費用、、登記費用などで、約290万円が別途必要です。
※駐車スペースを1台分確保した参考プランですが、プランや車種により1台分の確保が難しい場合がございます。
お問い合わせ
<お問合わせ先>
積水ハウス株式会社 東京営業本部定休日:火曜・水曜・祝日 ※当会場では、購入のお申込みは受け付けておりません。 営業時間:9:00~18:00
TEL:0120-776-511
There are staffs who speak English and Chinese.
Tell the staff I want to consult in ENG/Chinese, your name and phone number.
<広告主(事務所)>
積水ハウス株式会社 東京北支店東京都豊島区西池袋1-11-1 メトロポリタンプラザビル11F
定休日:火曜・水曜・祝日 営業時間:9:00~18:00
TEL:03-3984-5261















