阪急彩都セントラルステージ
大阪府茨木市彩都やまぶき3丁目8番91

国際文化公園都市「彩都」に建つ、プラスアルファの空間が嬉しい3LDKの住まい。積水ハウスの「life knit design」、ご家族で紡ぐ新しい暮らしがここに。
現地案内会【ご予約受付中】
現地案内のみ、資金計画のご相談など、お客様のご都合に合わせて「知りたい情報だけ」という短時間のご案内も可能です。
まずはお気軽にお問い合わせください!
◆積水ハウス大阪北支店◆0120-43-0102(営業時間/9:00~18:00 定休日/火曜日・水曜日・祝日)
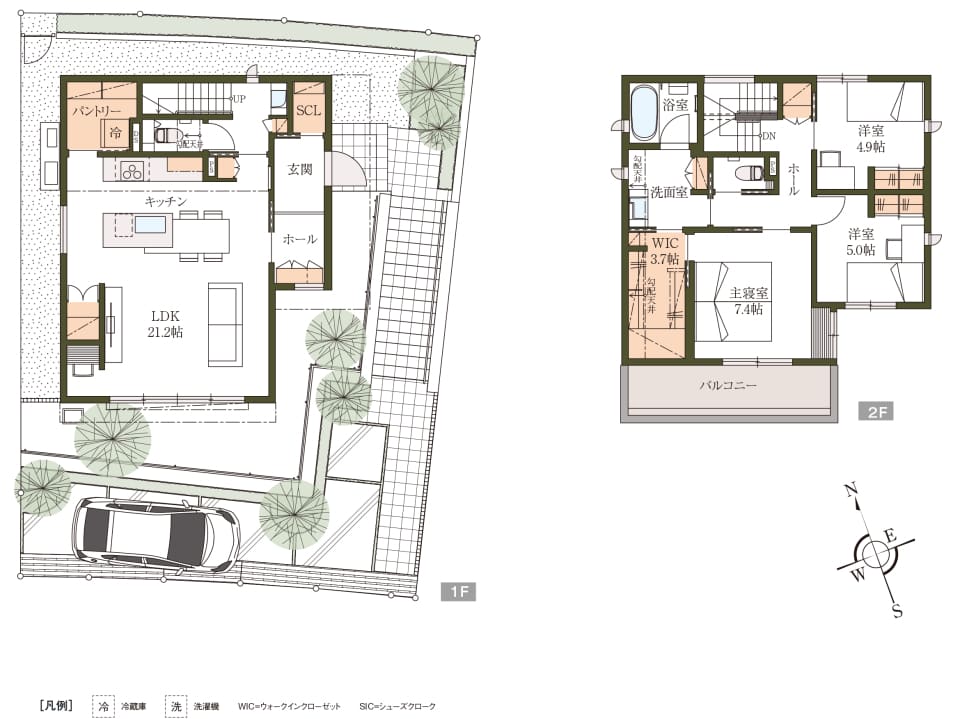
プラン
◆3-8号地◆
【3-8号地/外観】
木のぬくもりに包まれる「シャーウッド」。木質感を活かしたナチュラルな印象の内装で、こだわりのお部屋作りを楽しめます。/2024年5月撮影
■敷地面積/169.58㎡(約51.29坪)
■延床面積/116.67㎡(約35.29坪)
●1階床面積/55.00㎡
●2階床面積/61.67㎡
※間取り図に掲載の植栽は成長後のイメージに近い画像を用いていますが、販売時は苗木や緑量の少ない状態です。育成には数年を要するものもあり、成長後の形状も様々です。
※間取り図・写真に掲載の車・家具・備品などは、販売価格に含まれません。
※洋室などの帖数は概算です。帖数は1帖を1.6562㎡として計算しております。
心地よく暮らせる住まい
【3-8号地/キッチン】
キッチンには飾り棚があり、動きのある植物を置くだけでぐんとおしゃれな雰囲気に。ナチュラルで温かみのあるリビングと調和し、空間にアクセントをプラスします。/2024年5月撮影
区画情報
全体区画図

丘陵地に位置する分譲地。景観協定のもと計画された、統一感のある美しい景観が広がります。
2方が接道しているため、開放的な空間で伸びやかな毎日を過ごすことができそうです。
販売区画図

幅員約16.0mの前面道路の両側には歩道が整備されています。
歩行者が通行する際の安全性に配慮されており、お子様がいるご家庭にも嬉しい環境です。
- 号地
- 3-8
- 土地面積
- 169.58 ㎡(約51.29坪)
- 建物面積
- 116.67 ㎡(約35.29坪)
- 土地建物価格(税込)
- 8980万円
アクセス/周辺マップ
52077736*77掲載のマップコードは現地への誘導のため記載しております。カーナビでのご来場の際にご利用ください。
※「マップコード」および「MAPCODE」は(株)デンソーの登録商標です。
交通アクセス図
大阪モノレール彩都線「彩都西」駅まで徒歩11分。座って通勤・通学がしやすい始発駅です。
「新大阪」駅へ乗車45分、「梅田」駅へは乗車52分でアクセスできます。
現地案内図
スーパーへ徒歩6分、ショッピングモールへ徒歩12分。
周辺には公園も点在し、のびのびと子育てできる環境です。
生活利便施設が揃いながらも豊かな自然を身近に感じる、穏やかな街並みが広がります。
お問い合わせ
<お問合わせ先>
積水ハウス株式会社 大阪北支店定休日:火曜日、水曜日及び祝日 営業時間:9:00~18:00
TEL:0120-43-0102
<広告主(事務所)>
積水ハウス株式会社 大阪北支店箕面市船場東一丁目10-33
定休日:火曜日、水曜日及び祝日 営業時間:9:00~18:00
TEL:072-726-2100








