コモンステージ如月町
岐阜県岐阜市如月町5丁目14番3、岐阜市錦町5丁目17番1

土地60坪以上の分譲地。長良川や金華山に囲まれた、岐阜市街地に近い活気あふれる住環境。本荘小学校まで徒歩3分(約240m)。都市の便利さと豊かな自然に恵まれたロケーションです。
岐阜バス「本荘」停留所まで徒歩6分(約430m)。そこから「JR岐阜」停まで通勤時10分(日中平常時は9分)でアクセス可能。岐阜行きのバスは便数も多く朝のラッシュ時間帯(6~7時)は14本運行されているため、岐阜市街地や名古屋方面への通勤にも便利です。本荘小学校まで徒歩3分(約240m)、本荘中学校まで徒歩12分(約940m)と、お子さまも無理なく通学することができる距離。商業施設「オーキッドパーク」(徒歩10分/約760m)や岐阜市民病院(徒歩8分/約640m)にもアクセスしやすい生活利便性の高さにも注目です。
現地写真
生活利便性の高い立地で通勤通学にも便利な住環境。
岐阜バス「本荘」停留所まで徒歩6分(約430m)。岐阜行きのバスは便数が多く便利です。本荘小学校まで徒歩3分(約240m)と通勤・通学に便利な立地です。/航空写真(2022年8月撮影)
土地60坪の隣接した建物の少ない全3区画の整形地。
場所は主要道路から離れた閑静な住宅街の中にあります。周辺に高い建物は少なく、多方から陽光を取り入れた開放的な間取りを作ることができます。/航空写真(2022年8月撮影)
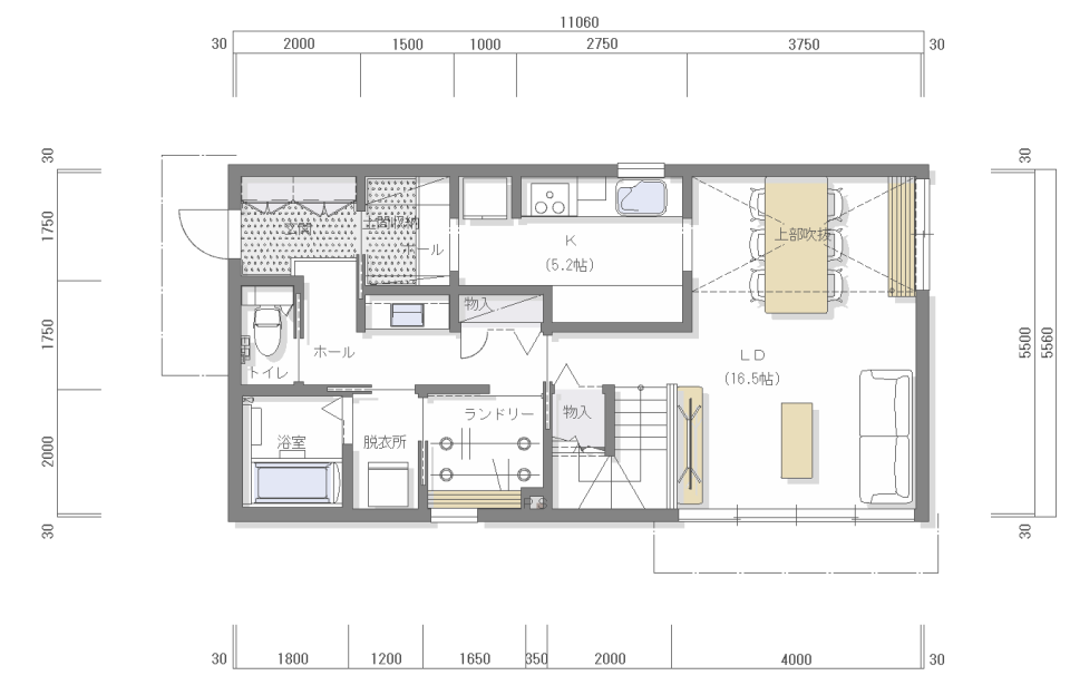
【参考プラン】
《参考プラン:外観パース》
【土地価格/1670万円、敷地面積/203.06㎡(61.42坪)】1F床面積/61.49㎡、2F/53.82㎡、延床面積/115.31㎡(34.88坪)
■土地価格/1670万円
■敷地面積/203.06㎡(61.42坪)
■建物参考価格(建物本体価格+消費税込)/4400万円
■1F床面積/61.49㎡、2F/53.82㎡、延床面積/115.31㎡(34.88坪)
このプランの場合、外構工事費用、屋外給排水工事費用、地盤改良費用などで、約650万円が別途必要です。
※参考プランは、当社が紹介するプランの一例です。このプランを義務づけるものではありません。
※プラン中の家具・車等は、建物参考価格に含まれておりません。
※外観パース・内観パースは参考プランを基に描き起こしたイメージパースです。
※パースに描かれている樹木は、成長した数年後のイメージです。
内観パース
《参考プラン:内観パース》
区画情報
アクセス/周辺マップ
28 584 061*22掲載のマップコードは現地への誘導のため記載しております。カーナビでのご来場の際にご利用ください。
※「マップコード」および「MAPCODE」は(株)デンソーの登録商標です。
生活利便施設が揃った閑静な住宅街で、ゆとりある暮らしを。
本荘保育園、本荘小学校、本荘中学校まで徒歩12分(約940m)圏内でアクセスできる距離。コンビニ、ドラッグストアが徒歩10分(約760m)圏内にすべて揃う利便性の高いエリアです。
お問い合わせ
<お問合わせ先>
積水ハウス株式会社 シャーウッド岐阜店定休日:火曜日、水曜日及び祝日 営業時間:9:00~18:00 ※当会場では購入申し込みは受け付けておりません。
TEL:058-268-8188
<広告主(事務所)>
積水ハウス株式会社 岐阜支店岐阜市市橋3丁目4番8号
定休日:火曜日、水曜日及び祝日 営業時間:9:00~18:00
TEL:058-268-7611









