コモンステージ水戸笠原
茨城県水戸市笠原町字八ツ無地1784番26他

全181区画の大規模プロジェクト。「コモンステージ水戸笠原」
県庁の南に連なり、水戸市の新しい住宅地として目覚ましい発展を遂げる笠原町で、
積水ハウスによる県都を象徴するまちづくりがすすんでいます。
めざしたのは、”水と緑の自然都市”水戸の魅力を、次代へと継承するまちづくり。
住むほどに愛着が深まるためのアイディアを込めたこの街が、県都としての誇りを次代へ継承します。
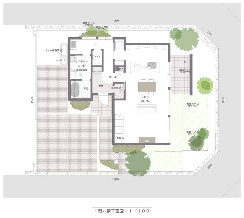
参考プラン・現地写真
≪参考プラン:外観パース≫
■土地価格/1,555万円
■敷地面積/218.31㎡(約66.03坪)
■建物参考価格(建物本体価格+消費税込み)4,980万円
■延べ床面積112.42㎡(34.00坪)
このプランの場合、外構工事費用、屋外給排水工事費用、地盤改良費用などで、約1,000万円が別途必要です。
※参考プランは当社が紹介するプランの一例です。このプランを義務づけるものではありません。
※プランの中の家具・車・家電・小物類等は、建物参考価格に含まれておりません。
※外観パース・内観パースは参考プランを基に描き起こしたイメージパースです。
※植栽は5年後のイメージです。
区画情報
アクセス/周辺マップ
239 579 642*42掲載のマップコードは現地への誘導のため記載しております。カーナビでのご来場の際にご利用ください。
※「マップコード」および「MAPCODE」は(株)デンソーの登録商標です。
アクセスマップ
コモンステージ水戸笠原は水戸市笠原町にございます。
お問い合わせ
<お問合わせ先>
積水ハウス株式会社 水戸支店定休日:火曜日、水曜日及び祝日 営業時間:9:00~18:00
TEL:029-248-7771
<広告主(事務所)>
積水ハウス株式会社 水戸支店茨城県水戸市城南1-1-6 サザン水戸ビル301
定休日:火曜日、水曜日及び祝日 営業時間:9:00~18:00
TEL:029-248-7771







.png)
.png)

