CONCEPT
子供をはぐくむプランニング
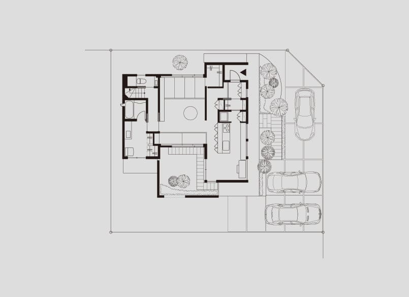
子供たちが新しい家で色んな事を体験しながら元気に育って欲しいという願いから、ぐるぐる家の周りを走りまわれるように回遊性のある計画に。大谷石の階段を上った先には洗い出しのアプローチ。そのアプローチは中庭まで繋がり、外と中を緩やかにつなぐ役割を果たします。
PLAN
効果的に配された開口部が美しく光を運ぶ
リビングにはやさしい光を取り入れる為に障子を採用。南北に配置された窓からは風がとおり抜け、東側の窓からは朝日が差し込む。外部の視線の配慮から高さを抑えた窓は、空間の重心を下げて落ち着いた印象をもたらすとともに、緑を美しく居心地の良い室内に取り込みます。
群馬県 N邸
- 敷地面積/277.92㎡
- 延床面積/126.50㎡
PROFESSIONAL STAFF
デザイナー
中野 硫基
デザイナー
中野 硫基

